Аренда дома 190 кв.м

450 000 /мес

Химки Сходня мкр, Набережная ул.

Показать на карте

  • 190 м2 Общая площадь
  • 2 Этажей

09.02.2026 12:18

№ 867617

Проверено модератором

Мы звоним по указаному номеру и задаем ряд вопросов, чтобы убедиться, что квартира от собственника. При малейших подозрениях мы просим доказать, что квартира действительно от собственника или удаляем из базы.

ВАЖНО: никогда не вносите предоплату или залог, прежде чем осмотрите квартиру и проверяте документы собственника: паспорт и выписку из ЕГРН

Описание

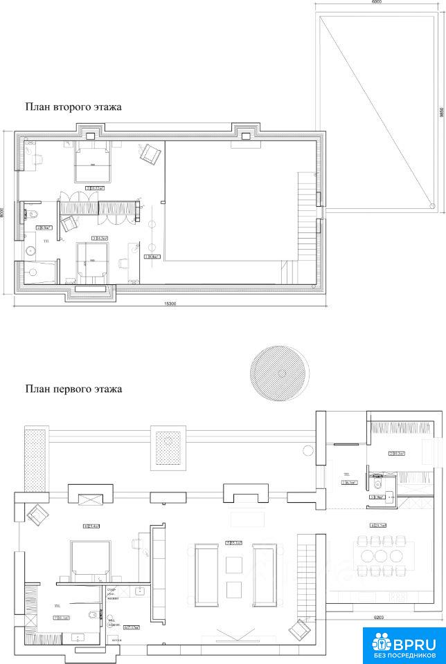
Уникальный архитектурный проект для ценителей особенных домов! В этом доме пастельные и насыщенные благородные оттенки, текстуры кирпича, металла, натурального дерева идеально сочетаются с винтажной и современной дизайнерской мебелью. Очень уютный уединенный камерный поселок, окруженный рекой, беззаборное строительство. Тоскана в Подмосковье! Абсолютная тишина и камерность. Площадь 190м2: 1) мастер-спальня, с отдельным душем, гардеробной зоной, выходом на терассу 2) 2 дополнительные спальни на втором этаже, с отдельной душевой 3) гардеробная для верхней одежды при входе 4) просторная кухня со всей необходимой техникой 5) огромный зал с выходом на терассу 6) котельная и постирочная Дом очень светлый, окна в пол, подсветка фасада, полностью готовый ландшафт с посаженными деревьями. 7 км от МКАД, в округе вся необходимая инфраструктура, частная школа, детский сад, рынок уровня "Усачевского" - фермерский дворик, кофейни, пекарни, фитнесы и пр. Пол - дубовая инженерная доска, кухня крашеный МДФ, столешница натуральный мрамор, гипсовая лепнина на потолке, мебель - винтаж, венские стулья Thonet, дизайнерская, кровать 2х2 м, кровати и матрасы King Koil, Аскона. Дом полностью оснащен бытовой техникой и всем необходимым для жизни. Дом сделан для себя! Сдается впервые с июня на долгий срок, со всей имеющейся мебелью

Расположение

Другие дома/дачи/коттэджи


Дом, 190 кв.м

Химки Сходня мкр, Набережная ул., 21

Сходня район

100 /мес

Сдаю дом на длительный срок,в холодное время года жить в доме,а летом в летнем домике. На участке есть душ и туалет Дом сдаю бесплатно ,нужен присмотр за пожилым человеком ,который будет тут жить в л

Показать телефон

09.02.2026 12:18

Объявление № 872429

Дом, 190 кв.м

Химки Фирсановка мкр, ул. Кирова, 43

Фирсановская район

190 000 /мес

Редкая удача! Дом с тремя спальнями, гардеробной, двумя санузлами и кухней-гостиной. Дом теплый и красивый. Газ магистральный, септик не требует обслуживания, вода центральная. Видеонаблюдение, два па

Показать телефон

09.02.2026 12:18

Объявление № 867288

Дом, 190 кв.м

Химки Фирсановка мкр, ул. Артема Сергеева

Фирсановская район

47 000 /мес

Сдается одноэтажный частный дом в Фирсановке ул Осипенко: 2 комнаты, кухня, санузел, просторная прихожая. При необходимости возможно дооснащение некоторой бытовой техникой и мебелью. Дом с косметиче

Показать телефон

09.02.2026 12:18

Объявление № 872278

Дом, 190 кв.м

Химки Новогорск мкр, ул. Соколовская

Пятницкое шоссе район

369 000 /мес

## Элитный таунхаус в Новогорске: роскошь и комфорт для вашей семьи ### Уникальное предложение в охраняемом коттеджном поселке **Просторный таунхаус 180 м²** с авторской отделкой и изысканным дизайн

Показать телефон

09.02.2026 12:18

Объявление № 867616

Дом, 190 кв.м

Химки Новогорск мкр, ул. Олимпийская

Сходненская район

350 000 /мес

Сдаётся дом в престижном коттеджном поселке "Олимпийская деревня Новогорск" (Химки). Тишина, лес и чистейший воздух — всего 10 минут до МКАД! Идеально для семей и тех, кто ценит комфорт за городом!

Показать телефон

09.02.2026 12:18

Объявление № 867615