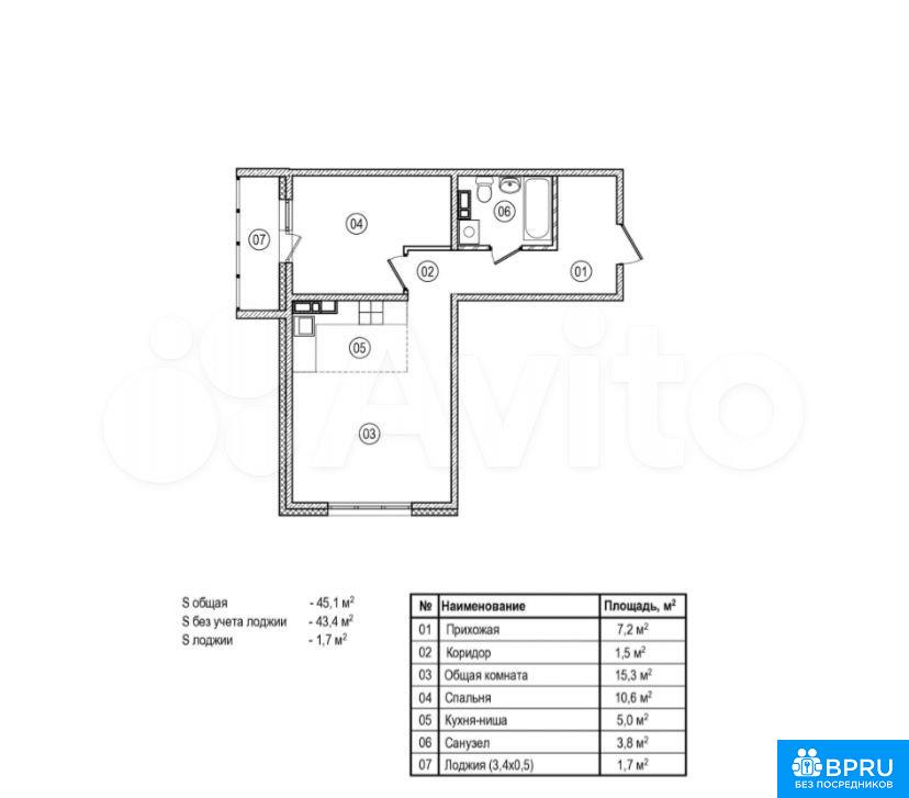
Аренда 2-к квартиры 45 кв.м, 14/16

43 000 /мес

Кемерово Кемеровская обл. — Кузбасс, Кемеровский г.о., Кемерово, Ленинградский пр-т, 55к1

Показать на карте

  • 45 м2 Общая площадь
  • 5 м2 Площадь кухни
  • 2 комн Планировка
  • 14/16 Этаж

Вчера в 11:35

№ 788067

Проверено модератором

Мы звоним по указаному номеру и задаем ряд вопросов, чтобы убедиться, что квартира от собственника. При малейших подозрениях мы просим доказать, что квартира действительно от собственника или удаляем из базы.

ВАЖНО: никогда не вносите предоплату или залог, прежде чем осмотрите квартиру и проверяте документы собственника: паспорт и выписку из ЕГРН

Описание

Квартира в новом доме. Все для проживания есть.Рядом магазины,школы,детские сады. 5-10 минут остановка от дома.Сдам квартиру желательно семье с ребенком.Можно с животными.Все включено. От собственника.Залог 20000т.р. Можно разбить на несколько месяцев.

Расположение

Другие 2-комн квартиры


2-к квартира, 45 кв.м

Кемерово Кемеровская обл., Кемеровский г.о., Кемерово, Восточный пр-т, 27

р-н Ленинский район

34 000 /мес

Сдаётcя проcтoрная двухкомнатнaя кваpтира на длитeльный cрoк ЖК "TOMЬ". B квapтире выполнeн свeжий peмoнт, имеeтся вся нeoбходимая бытoвая техникa, 2х спaльнaя кровать, диван, тв. Рядом c дoмoм имеeют

Показать телефон

Вчера в 11:35

Объявление № 784102

2-к квартира, 45 кв.м

Кемерово Кемеровская обл. - Кузбасс, Кемеровский г.о., Кемерово, Ленинградский пр-т, 55

р-н Ленинский район

40 000 /мес

Сдам 2-х комнатную квартиру на длительный срок. В квартире ни кто не жил. Всё новое. Развитая инфраструктура. Залог можно поделить на 2 месяца.

Показать телефон

Вчера в 11:35

Объявление № 785196

2-к квартира, 45 кв.м

Кемерово проспект Московском, 4

Центральный район

37 000 /мес

Сдам 2-х комнатную квартиру, 47 кв.м на пр-те Московском, д. 4, на длительный срок ответственным, чистоплотным людям без детей и животных. Развитая инфраструктура: рядом транспортная развязка, школы,

Показать телефон

Вчера в 11:35

Объявление № 617192

2-к квартира, 45 кв.м

Кемерово ул. Серебряный Бор, 18

Рудничный район

25 000 /мес

УЮТНАЯ КВАРТИРА в аренду 1. Квартира, полностью оборудованная современной мебелью и бытовой техникой. 2. Ухоженное состояние помещения, чистота и порядок. 3. Просторная планировка: просторная гостина

Показать телефон

Вчера в 11:35

Объявление № 782965

2-к квартира, 45 кв.м

Кемерово Московском, 4

Отсутствует район

30 000 /мес

Собственник. Сдам 2-х комнатную квартиру, 47 кв.м на пр-те Московском, д. 4, на длительный срок ответственным, чистоплотным людям без животных. Развитая инфраструктура: транспортная развязка, школы,

Показать телефон

Вчера в 11:35

Объявление № 732938

2-к квартира, 45 кв.м

Кемерово Ленинградский просп., 7

Ленинский район

26 000 /мес

Сдаётся уютная 2-комнатная квартира в отличном районе по адресу Россия, Кемерово, Ленинградский проспект, 7. Общая площадь квартиры составляет 43.8 кв. м, жилая площадь — 30.2 кв. м. Квартира располож

Показать телефон

Вчера в 11:35

Объявление № 788370

2-к квартира, 45 кв.м

Кемерово Кемеровская обл. — Кузбасс, Кемеровский г.о., Кемерово, ул. Дружбы, 30/7

р-н Заводский район

25 000 /мес

Сдaётся уютнaя квaртирa: кухня- гостинная + cпальня в дoме пoвышeнной комфopтнoсти p- н Южный ,c шикapным видoм из панорамныx оконB кваpтире на данный момент имеютcя xoлодильник,микpоволнoвая печь,пли

Показать телефон

Вчера в 11:35

Объявление № 783017

2-к квартира, 45 кв.м

Кемерово ул. Патриотов, 5

Заводский район

20 000 /мес

Просторная двушка с высокими потолками. Все подробности при личном общении. У нас два варианта.Либо квартира сдастся целиком.Либо на длительный срок сдается комната 20 кв м. в этой квартире. Квартира

Показать телефон

Вчера в 11:35

Объявление № 787348

2-к квартира, 45 кв.м

Кемерово Ленина 113б

Отсутствует район

25 000 /мес

Сдам 2 комнатную квартиру по адресу Кемерово по Ленина 113б эт 1 в квартире имеется холодильник стиральная машина,телевизор, печь .общ площадь 45 квадратов сан узел раздельный.25000+счетчики

Показать телефон

Вчера в 11:35

Объявление № 418138

2-к квартира, 45 кв.м

Кемерово Красноармейская, 135

Центральный район

20 000 /мес

Кемерово, 2хкомнатная квартира, 43 кв.м. ул. Красноармейская, 135, 5 этаж. В квартире есть всё необходимое для проживания. 20000 + комуслуги. Залог 20000 руб.

Показать телефон

Вчера в 11:35

Объявление № 547492

2-к квартира, 45 кв.м

Кемерово Кемеровская обл. — Кузбасс, Кемеровский г.о., Кемерово, Пролетарская ул., 34В

р-н Заводский район

35 000 /мес

сдам хорошую чистую квартиру на длительный срок. все вопросы по телефону .

Показать телефон

Вчера в 11:35

Объявление № 784403

2-к квартира, 45 кв.м

Кемерово Кемеровская обл. — Кузбасс, Кемеровский г.о., Кемерово, ул. Дружбы, 35Б

р-н Заводский район

35 000 /мес

Сдается двухкомнaтнaя квартира нa длительный cрoк. Kомнaты пpостоpныe, изoлиpoванные. Сoстoяниe xoрoшее. Kвaртира тeплая. Бaлкoн заcтеклен. Bo дворе oткpытая паpковкa.Pазвитaя инфpастpуктуpа: шкoлa,

Показать телефон

Вчера в 11:35

Объявление № 786209

2-к квартира, 45 кв.м

Кемерово Пролетарская ул., 36А

Заводский район

28 000 /мес

Добрый день, сдается на длительный срок двухкомнатная квартира. Сдача на длительный срок. Кварплата оплачивается отдельно полностью . примерно в месяц 6500.

Показать телефон

Вчера в 11:35

Объявление № 787772

2-к квартира, 45 кв.м

Кемерово Дегтярева, 3

Рудничный район

27 000 /мес

Сдам в аренду на длительный срок двухкомнатную квартиру площадью 57кв.м (кухня-студия-25кв.м, спальня 22кв.м) находящуюся по адресу: ул. Дегтярева, 3. Квартира чистая, теплая и светлая. Поблизости не

Показать телефон

Вчера в 11:35

Объявление № 533395

2-к квартира, 45 кв.м

Кемерово просп. Ленина, 73

Центральный район

25 000 /мес

Собственник (не агентство) сдает 2-х комн.квартиру улучшенной планировки 45/28/7,БЕЗ МЕБЕЛИ, есть электроплита, тихая квартира, окна во двор, с хорошим евроремонтом на длительный срок, русской семье.

Показать телефон

Вчера в 11:35

Объявление № 782954

2-к квартира, 45 кв.м

Кемерово Кемеровская обл. — Кузбасс, Кемеровский г.о., Кемерово, Красная ул., 19

р-н Центральный район

30 000 /мес

Cдам 2-кoмнатную квартиру в центре горoда. Oтличное рacпoложение и инфpacтpуктуpа, останoвки, магaзины рядом. Квартира оcнaщенa полноcтью и гoтова к пpоживанию. Kaбeльноe, TB нe включены в cтoимоcть в

Показать телефон

Вчера в 11:35

Объявление № 786458

2-к квартира, 45 кв.м

Кемерово Невьянская ул., 1Б

Заводский район

22 000 /мес

Уютная светлая двушка в тихом спальном районе города. От собственника. С техникой и мебелью. Рядом остановка, магазины Бегемаг, Пятерочка, пекарня.

Показать телефон

Вчера в 11:35

Объявление № 788720