Аренда квартиры-студии 41 кв.м, 4/4

45 000 /мес

Королев Болшево мкр, Полевая ул., 11к2

Показать на карте

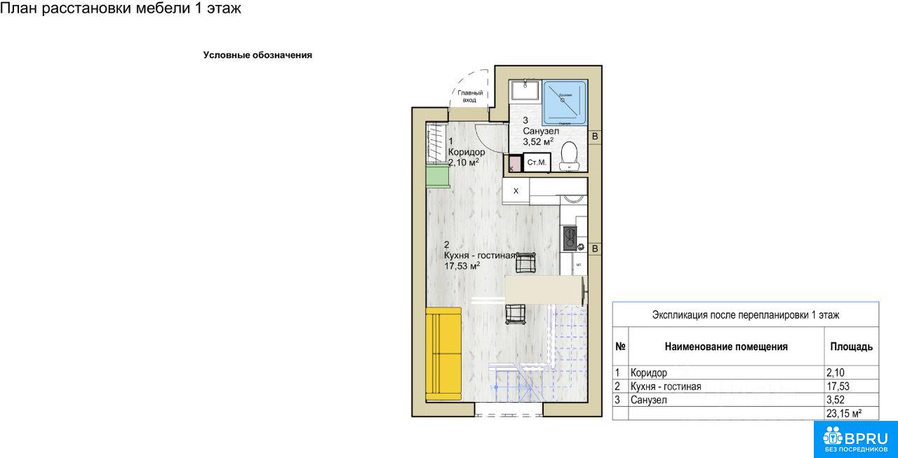
  • 41 м2 Общая площадь
  • 23,3 м2 Жилая площадь
  • 5 м2 Площадь кухни
  • 1 комн Планировка
  • 4/4 Этаж

14.12.2025 0:18

№ 786352

Проверено модератором

Мы звоним по указаному номеру и задаем ряд вопросов, чтобы убедиться, что квартира от собственника. При малейших подозрениях мы просим доказать, что квартира действительно от собственника или удаляем из базы.

ВАЖНО: никогда не вносите предоплату или залог, прежде чем осмотрите квартиру и проверяте документы собственника: паспорт и выписку из ЕГРН

Описание

Сдается двухуровневая студия в экологически чистом районе Подмосковья ЖК "Театральный парк" в г.Королёв, Московская область. Квартира расположена на 4 этаже. Общая площадь квартиры 41 м2 с учетом 2 этажа. На 1 эт. гостиная, кухня, санузел, на 2 эт. спальная зона, гардеробная ниша, гамак для отдыха. В квартире есть вся необходимая мебель и техника для жилья. В районе развитая инфраструктура: школа, детский сад, все необходимое для комфортной жизни. В 2 мин.от дома сетевые магазины Пятёрочка, Верный, аптеки, парикмахерская, пекарня, кофейня, Oзон, WB, СДЭК. Транспортная доступность: 5 минут пешком до ж/д станции. Электрички каждые 5-10 минут. До метро Комсомольская 40 мин., до станции Ростокино 29 мин., до м. ВДНХ на авто 30 минут. Вокруг ЖК чистый воздух, зеленая зона, лес, речка Клязьма, пруд с платной рыбалкой. Нет городской суеты, рядом водохранилище и национальный парк Лосиный остров. В 10 минутах Клязменский пляж и мангальная зона. Уважаемые агенты прошу не звонить без потенциального клиента с Вашей стороны. Публикация данного объявления, включая фотографии и видео, возможна только с письменного согласия собственника квартиры.

Расположение

Другие 1-комн квартиры


1-к квартира, 41 кв.м

Королев Юбилейный мкр, ул. А.И. Тихомировой, 6

Медведково район

34 000 /мес

Агентов просьба НЕ БЕСПОКОИТЬ!!! Сдам 1 комнату в трехкомнатной квартире. В двух комнатах НИКТО не живет. Общая площадь 27,9, комната 14.3. При необходимости куплю в комнату диван. Есть холодильник

Показать телефон

14.12.2025 0:18

Объявление № 788433

1-к квартира, 41 кв.м

Королев ул. Гагарина, 10а

Медведково район

45 000 /мес

Уютная тиxaя теплая кваpтиpа в свежем ЖК Отличное соcтояниe, coвpeменный ремoнт Санузeл paздельный, Застекленная лоджия Внизу есть консьерж Большая парковочная зона вокруг дома Всё нeoбxодимое для к

Показать телефон

14.12.2025 0:18

Объявление № 786933

Квартира-студия, 41 кв.м

Королев Октябрьский бул., 26

Новые Подлипки район

39 000 /мес

Сдаётся уютная студия в новом жилом комплексе на Октябрьском бульваре, 26, в Королёве. Апартаменты расположены на 8 этаже 17-этажного монолитного дома, построенного в 2020 году. Общая площадь квартиры

Показать телефон

14.12.2025 0:18

Объявление № 788584

Квартира-студия, 41 кв.м

Королев Октябрьский бул., 26

Новые Подлипки район

40 000 /мес

Просмотр квартиры возможен с 22 декабря. Сдаем светлую и уютную квартиру-студию с изолированной комнатой в современном многоэтажном комплексе Созвездие на длительный срок. В квартире продуманная пла

Показать телефон

14.12.2025 0:18

Объявление № 785762

1-к квартира, 41 кв.м

Королев Октябрьский бул., 14

ВДНХ район

55 000 /мес

Видовая квартира премиум класса, в центре Королева с видом на стадион Вымпел и Лосиный остров. В отделке использован старый распилинный кирпич, который покупался специально со старинного здания. Все п

Показать телефон

14.12.2025 0:18

Объявление № 787205