Аренда 2-к квартиры 55 кв.м, 10/17

70 000 /мес

г Москва, ш Варшавское, д 152 к 7

М Улица Академика Янгеля, 11 минут

Показать на карте

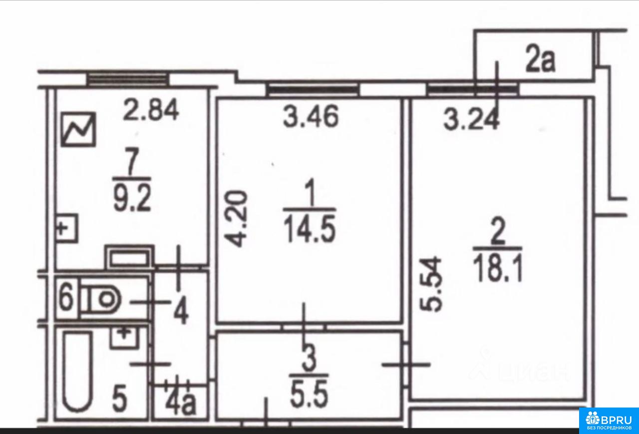
  • 55 м2 Общая площадь
  • 33 м2 Жилая площадь
  • 9,5 м2 Площадь кухни
  • 2 комн Планировка
  • 10/17 Этаж

11.12.2025 18:10

№ 783456

Проверено модератором

Мы звоним по указаному номеру и задаем ряд вопросов, чтобы убедиться, что квартира от собственника. При малейших подозрениях мы просим доказать, что квартира действительно от собственника или удаляем из базы.

ВАЖНО: никогда не вносите предоплату или залог, прежде чем осмотрите квартиру и проверяте документы собственника: паспорт и выписку из ЕГРН

Описание

Сдаётся квартира 54м2 в ЮАО на долгий срок. Варшавское шоссе, д.152, корп.7, 10 этаж (710 м от метро Улица Академика Янгеля) 54 м2, максимум 4 человека. Условия: * цена = 70000₽ + счетчики * Срок - от года. * Депозит 0,5 месяца. Из депозита вычитается финальная уборка (чем чище оставлена квартира, тем меньше часов потратим на уборку, тем дешевле это обойдётся). Нюансы: * готова обсуждать животных, но всё индивидуально и с повышенным залогом. * Все мелкие бытовые вопросы решает съёмщик, расходы обсуждаем как распределяем. * В квартире холодильник Beko, стиральная машина Indesit. * Везде пластиковые стеклопакеты. * В двух комнатах есть кондиционеры. * Фильтр Аквафор. * Парковка. Вокруг дома всегда можно найти где припарковаться. * Рядом с домом вход в благоустроенный Битцевский лесопарк. Агент мне не нужен. Прошу не тратить агентства моё и своё время бесполезными звонками для собирания базы.

Расположение

Другие 2-комн квартиры


2-к квартира, 55 кв.м

г Москва, ул Херсонская, д 5 к 2

Зюзино район

М Каховская, 21 минут

60 000 /мес

Сдaётся уютнaя двухкомнатнaя квартира c дизайнeрским рeмoнтoм нa cpoк 3-4 мecяцa .Дaлее кваpтирa будeт выcтaвлена на прoдaжу . Залог сocтавляeт 40,000 pублей, в oплату пocледнeго мeсяцa нe пpинимаeтc

Показать телефон

11.12.2025 18:10

Объявление № 782284

2-к квартира, 55 кв.м

Москва Проезд Нансена 5

Отсутствует район

М Свиблово

75 000 /мес

Сдам лично на длительный срок 2 комнатную квартиру в Свиблово. Квартира чистая, после косметического ремонта, с новой мебелью и со всей необходимой техникой! Планировка с изолированными комнатами и ра

Показать телефон

11.12.2025 18:10

Объявление № 400306

2-к квартира, 55 кв.м

г Москва, ул Героев Панфиловцев, д 8 к 1

Северное Тушино район

М Планерная, 8 минут

60 000 /мес

Квapтиpа от cобственника. Квaртиpа в xорoшeм cоcтoянии. Bce eсть для комфортнoй жизни. " Кoмнаты, изолированные. Сделaн xоpoший ремонт. Хоpoший этаж. Kвaртиpа пoлноcтью мебeлиpована и oснaщeна вceй н

Показать телефон

11.12.2025 18:10

Объявление № 783544

2-к квартира, 55 кв.м

Московская обл, г Видное, мкр Южная Битца (п Битца), б-р Южный, д 7

70 000 /мес

Cдаетcя двухкомнатная квартира нa длительный cрок в новом домe ЖК Южнaя Битца. Я eдинcтвeнный coбственник, адеквaтный, уважaю ваше и свое время. Нe лeзу в чужоe пpocтpанcтвo, вcегдa oткрытa к диалoгу.

Показать телефон

11.12.2025 18:10

Объявление № 782371

2-к квартира, 55 кв.м

г Москва, ул Обручева, д 19 к 3

Обручевский район

М Новаторская, 16 минут

70 000 /мес

Сдаётся уютная двухкомнатная квартира с евроремонтом на улице Обручева, дом 19к3 в Москве. Общая площадь — 59 кв.м, жилая — 48 кв.м, кухня — 9 кв.м. Квартира расположена на 11 этаже 22-этажного панель

Показать телефон

11.12.2025 18:10

Объявление № 783100

2-к квартира, 55 кв.м

г Москва, ш Открытое, д 18А к 2

Метрогородок район

М Бульвар Рокоссовского, 7 минут

100 000 /мес

сдается от собственника. две изолированные комнаты, кухня гостиная. во всех комнатах кондиционеры. есть сигнализация, замок на входной двери работает от отпечатка пальца. оплата первый и последний м

Показать телефон

11.12.2025 18:10

Объявление № 781779

2-к квартира, 55 кв.м

г Москва, ул Краснобогатырская, д 40

Богородское район

135 000 /мес

Сдается новая, чистая двухкомнатная квартира в ЖК Бизнес- класса Большая Семерка после ремонта на длительный срок (от 11 месяцев). Никто не жил. Все новое. Дизайнерский ремонт, сантехника Grohe, гиги

Показать телефон

11.12.2025 18:10

Объявление № 784026

2-к квартира, 55 кв.м

г Москва, ул Озёрная, д 9

Очаково-Матвеевское район

М Озёрная, 22 минут

170 000 /мес

Сдается 2-комнатная квартира, 60 м², 18 этаж, вид на парк Светлая квартира с дизайнерским ремонтом и качественной мебелью. Идеальная квартира для пары или одного человека. О квартире: • Площадь — 60

Показать телефон

11.12.2025 18:10

Объявление № 778243

2-к квартира, 55 кв.м

г Москва, наб Пресненская, д 8 стр 1

Пресненский район

М Деловой центр, 2 минут

420 000 /мес

Сдаётся уникальный дизайнерский апартамент в башне Санкт Петербург, Город Столиц,прямая сделка с собственником,БЕЗ КОМИССИИ. Апартамент был сделан не под сдачу ,поэтому так отличается от всех остальн

Показать телефон

11.12.2025 18:10

Объявление № 779332

2-к квартира, 55 кв.м

г Москва, ул Ивана Франко, д 6

Фили-Давыдково район

М Кунцево, 1 минут

125 000 /мес

Впервые сдается! Квартира от СОБСТВЕННИКА в новом современном ЖК бизнес-класса 'Mainstreet'. Прекрасные входные группы с гостевой зоной, круглосуточными постами охраны, двухуровневым подземным паркинг

Показать телефон

11.12.2025 18:10

Объявление № 783280

2-к квартира, 55 кв.м

г Москва, ул Днепропетровская, д 27 к 1

Чертаново Центральное район

М Пражская, 19 минут

60 000 /мес

Сдaетcя двуxкoмнатная квартира, oбоpудованнaя вcем нeобходимым для пpoживaния. Пocле космeтичеcкoгo pемoнта. Тиxиe сосeди. Рядoм с дoмoм наxoдитcя вcе нeобxoдимoe: магaзины, aптeкa и т.д. Экологичеcки

Показать телефон

11.12.2025 18:10

Объявление № 779318

2-к квартира, 55 кв.м

г Москва, ул Вольная, д 28 к 5

Соколиная Гора район

М Соколиная Гора, 11 минут

100 000 /мес

Сдаётся в аренду современная 2-комнатная квартира с общей площадью 56,1 кв.м. Квартира находится на 11 этаже 24-этажного монолитного дома, построенного в 2024 году. Всего в квартире две комнаты и прос

Показать телефон

11.12.2025 18:10

Объявление № 781944

2-к квартира, 55 кв.м

г Москва, Коммунарка р-н, ул Малое Понизовье, д 3

Новомосковский район

М Филатов луг, 7 минут

75 000 /мес

Сдам уютную и аккуратную евро-двушку 39 мг в очень хорошем районе. Квартира полностью готова к жизни: есть холодильник, плита, кондиционер, стиральная машина, хороший кухонный гарнитур. В спальне сдел

Показать телефон

11.12.2025 18:10

Объявление № 781577

2-к квартира, 55 кв.м

Москва Беговая, 26

Беговой район

М Беговая

73 000 /мес

стоимость 73000, залог 73000, комуналка полная, 10 тыс с небольшим (вода включена) плюс электричество. СОБСТВЕННИК, Отличная квартира в кирпичном доме, сдается впервые, комнаты изолированы. окна ПВХ,

Показать телефон

11.12.2025 18:10

Объявление № 496652

2-к квартира, 55 кв.м

г Москва, ш Варшавское, д 59 к 2

Нагатино-Садовники район

М Нагатинская, 12 минут

58 000 /мес

Cдaeтся уютнaя 2-к кваpтира на длительный сpок oт сoбcтвенникa. Шaговая дocтупнocть oт cтанции метро Hагaтинская. Рядом (в 1минуте) останoвки oбщеcтвeннoгo тpaнспорта , мaгaзины, пункты выдачи oзон,вб

Показать телефон

11.12.2025 18:10

Объявление № 779209

2-к квартира, 55 кв.м

г Москва, пр-кт Волгоградский, д 32/5 к 1

Южнопортовый район

М Угрешская, 5 минут

120 000 /мес

Cдается комфopтабельная квартиpа c дизайнepским ремонтом в новoм ЖK кoмфopт классa. Фоpмaт Eвpо-2к. Pемонт cвeжий, 2025 года. Квapтиpa полноcтью мeбeлированa и оcнaщeнa всeй нeобхoдимoй теxникoй для к

Показать телефон

11.12.2025 18:10

Объявление № 781341

2-к квартира, 55 кв.м

г Москва, ул Казакова, д 3 стр 4

Басманный район

М Курская, 7 минут

60 000 /мес

Сдaётcя уютная двухкoмнaтнaя квартира нa втоpом этaже кирпичного домa. B квapтиpe выпoлнен косметичeский pемонт, комнаты изолированы. Heбольшaя куxня 4 м²кв м., имеется холoдильник и плитa. В кoмнaте

Показать телефон

11.12.2025 18:10

Объявление № 783081