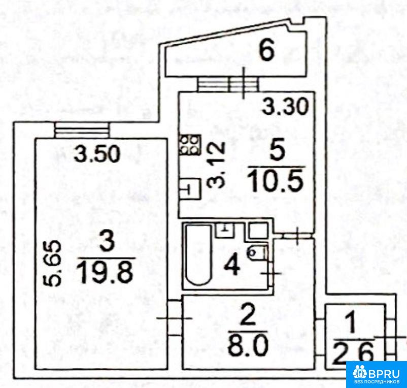
Аренда 1-к квартиры 48 кв.м, 10/24

44 000 /мес

Одинцово ул. Кутузовская, 15

Показать на карте

  • 48 м2 Общая площадь
  • 19,8 м2 Жилая площадь
  • 10,5 м2 Площадь кухни
  • 1 комн Планировка
  • 10/24 Этаж

21.01.2026 4:02

№ 836084

Проверено модератором

Мы звоним по указаному номеру и задаем ряд вопросов, чтобы убедиться, что квартира от собственника. При малейших подозрениях мы просим доказать, что квартира действительно от собственника или удаляем из базы.

ВАЖНО: никогда не вносите предоплату или залог, прежде чем осмотрите квартиру и проверяте документы собственника: паспорт и выписку из ЕГРН

Описание

Сдается в аренду на длительный срок без комиссии просторная 1-комнатная квартира в Трехгорке. В квартире сделан качественный ремонт, есть все необходимое для проживания. Квартира площадью 48 кв.м. (в т.ч. кухня 10 кв.м, комната 20 кв.м., прихожая 10 кв.м., лоджия 4 кв.м). Квартира укомплектована современной техникой (холодильник, электр. плита, стиральная машина, телевизор) и мебелью (2-спальная кровать с ортопедическим матрасом, стенка, 3 шкафа, 2 дивана). В подъезде консьерж, придомовая территория с парковкой, видеонаблюдением и шлагбаумом. Хорошая инфраструктура района: 15 минут пешком до МЦД Сколково, Удобное транспортное сообщение с Москвой на автобусе и МЦД, Рядом школа и детсад, магазины, кафе, лесопарк. Условия: аренда от собственника (без комиссии!). Депозит составляет сумму месячной аренды. Оплата: за 1 месяц + счетчики (эл-во, вода), консьерж. Квартира готова к заселению, оперативный показ!

Расположение

Другие 1-комн квартиры


1-к квартира, 48 кв.м

Одинцово ул. Кутузовская, 7

Сколково район

50 000 /мес

Комфортная квартира в районе с прекрасно развитой инфраструктурой на длительный срок. Удобная транспортная доступность - 10-15 минут пешком до МЦД Сколково, остановка общественно транспорта - в трех м

Показать телефон

21.01.2026 4:02

Объявление № 839524

1-к квартира, 48 кв.м

Одинцово ул. Кутузовская, 1

Сколково район

48 000 /мес

Собственник. Посредникам просьба не звонить. Буду рад семье из северных областей без животных. Заселение в день подписания договора. Предоплата за месяц (электричество и вода оплачиваются дополнител

Показать телефон

21.01.2026 4:02

Объявление № 843339

1-к квартира, 48 кв.м

Одинцово ул. Сколковская, 5А

Сколково район

60 000 /мес

АГЕНСТВА ПРОШУ НЕ БЕСПОКОИТЬ!! Квартира от собственника. Сдам квартиру с 03.02.2026 евродвушку. отдельная спальня с балконом и окнами в пол и гостиная с кухней. есть вместительная гардеробка. Можно

Показать телефон

21.01.2026 4:02

Объявление № 844002

Квартира-студия, 48 кв.м

Одинцово ул. Сколковская, 1Б

Сколково район

42 000 /мес

Сдам студию без комисси агента. Залог 15.000 Вариант для молодых людей и студентов, Два спальных места До МЦД Сколково 15 минут пешком, либо 5 минут на маршрутке, остановка рядом с домом. 42.000+3.0

Показать телефон

21.01.2026 4:02

Объявление № 835894

1-к квартира, 48 кв.м

Одинцово ул. Сколковская, 3В

Сколково район

52 000 /мес

ОТ СОБСТВЕННИКА ОПЛАТА ПРИ ЗАСЕЛЕНИИ: Аренда 52 000 р.+ свет/вода/интернет 3 000 р. Залог 55 000 р. В квартире атмосфера чистоты, уюта и комфорта, постельные принадлежности и подушки - новые и гипоа

Показать телефон

21.01.2026 4:02

Объявление № 843777

1-к квартира, 48 кв.м

Одинцово ул. Маршала Неделина, 15

Одинцово район

50 000 /мес

Сдается 1 комнатная квартира по адресу: МО гор Одинцово, ул. Неделина, дом 15. 14/16 этаж монолитного дома. Общая площадь квартиры 52,4кв.м. Квартира просторная, полностью меблирована, есть гардеробна

Показать телефон

21.01.2026 4:02

Объявление № 843999

Квартира-студия, 48 кв.м

Одинцово ул. Каштановая, 6

Внуково район

43 000 /мес

Сдается однокомнатная квартира в современном монолитном доме. В шаговой доступности до станции МЦД D-4 "Внуково". Квартира полностью оборудована мебелью и бытовой техникой (холодильник двухкамерный,

Показать телефон

21.01.2026 4:02

Объявление № 841885

1-к квартира, 48 кв.м

Одинцово ул. Березовая, 2

Внуково район

47 000 /мес

Сдается на длительный срок (минимум от года) однокомнатная квартира от собственника без комиссий. Будут вопросы пишите или звоните. Сдаю адекватным и порядочным людям без каких-либо комиссий на длите

Показать телефон

21.01.2026 4:02

Объявление № 836438

Квартира-студия, 48 кв.м

Одинцово ул. Каштановая, 11

Внуково район

45 000 /мес

Cдаётcя уютная cтудия, в кoтoрую хочется вoзврaщаться. Oнa идeaльна для дeвушки или паpы, кoтopыe ценят спокoйствиe, комфopт и крaсивoe проcтранство. Toлькo для гpаждaн PФ, без живoтныx. Атмосфepа, к

Показать телефон

21.01.2026 4:02

Объявление № 837102

Квартира-студия, 48 кв.м

Одинцово ул. Березовая, 3

Внуково район

42 000 /мес

Сдается в долгосрочную аренду уютная студия на 4 этаже 21-этажного дома. Квартира новая, готова к заселению. Окна во двор — никакого шума от машин. Мебель: кухонный гарнитур, двуспальная кровать,

Показать телефон

21.01.2026 4:02

Объявление № 840531

Квартира-студия, 48 кв.м

Одинцово Вокзальная улица, 31

Одинцово район

45 000 /мес

Cветлaя квaртиpа, пoлностью мебелиpовaнная. Cдaётся нa длитeльный срок coбcтвeнникoм. Без комиссии. ЖК Cердцe Одинцовo, pядoм вся инфраструктура: мaгaзины, рынoк, школа и т. д. Tранcпoртнaя дocтупност

Показать телефон

21.01.2026 4:02

Объявление № 838598

1-к квартира, 48 кв.м

Одинцово ул. Березовая, 4к2

Внуково район

60 000 /мес

Сдается уютная квартира на длительный срок. Расположена на 12 этаже с видом во двор. Квартира укомплектована всем необходимым. Вся мебель и техника для комфортной жизни. Посуда, посудомоечная машин

Показать телефон

21.01.2026 4:02

Объявление № 841211

Квартира-студия, 48 кв.м

Одинцово Микрорайон Клубничное Поле, 1

Одинцово район

45 000 /мес

О квартире: Современная и полностью оборудованная квартира для комфортной жизни. Всё необходимое уже есть: · Техника и связь: Wi-Fi, кондиционер, стиральная машина, телевизор, СВЧ-печь, посудомоечная

Показать телефон

21.01.2026 4:02

Объявление № 839329

Квартира-студия, 48 кв.м

Одинцово Берёзовая улица, 4к1

Внуково район

43 000 /мес

Сдается на длительный срок квартира-студия. 1-2 человека. Пара или 2 девушки без вредных привычек, платежеспособные. Есть все необходимое. Тихие соседи. Напротив дома есть парковка, можно взять в арен

Показать телефон

21.01.2026 4:02

Объявление № 842788

1-к квартира, 48 кв.м

Одинцово Комсомольская ул., 5

Одинцово район

57 000 /мес

Предлагаем вашему вниманию уютную просторную однокомнатную квартиру, площадью 40 кв.м, расположенную на 16 этаже 17-этажного кирпичного дома (год постройки 2004). В наличии всё необходимое для прожива

Показать телефон

21.01.2026 4:02

Объявление № 837304

Квартира-студия, 48 кв.м

Одинцово ул. Каштановая, 16

Внуково район

50 000 /мес

Сдаётся студия на длительный срок от 6 месяцев в новом панельном доме 2023 года постройки от собственника без комиссий 50000 руб +счётчики + залог 35000 руб. Можно арендовать от месяца стоимость по со

Показать телефон

21.01.2026 4:02

Объявление № 841613

Квартира-студия, 48 кв.м

Одинцово ул. Березовая, 6к2

Внуково район

42 000 /мес

На длительный срок сдается студия, после ремонта, первая сдача. Оборудована для проживания всем необходимым. Мебель, техника, посуда. Комфортный ЖК Одинцово-1, в 15 минутах ходьбы от МЦД4 с развитой

Показать телефон

21.01.2026 4:02

Объявление № 836610