Аренда 1-к квартиры 29,8 кв.м, 8/9

Объявление снято с публикации. Посмотреть другие объявления в этой категории

35 000 /мес

г Новосибирск, ул Кошурникова, д 37

М Золотая нива, 2 минут

Показать на карте

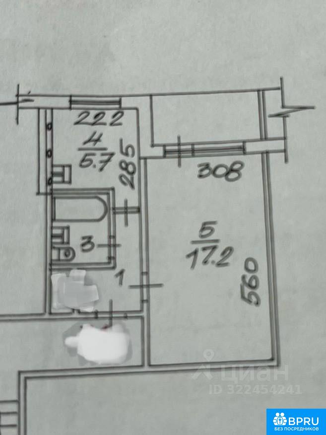
  • 29,8 м2 Общая площадь
  • 17,2 м2 Жилая площадь
  • 5,7 м2 Площадь кухни
  • 1 комн Планировка
  • 8/9 Этаж

Описание

Я - собственник. Сдам на длительный срок 1-комнатную квартиру в 1 минуте ходьбы от станции метро Золотая Нива. В квартире выполнен косметический ремонт, все новое, свежее, чистое, после ремонта еще никто не жил. Вся квартира отмыта - приятно находиться. Новые шторы и люстры, яркое освещение (для меня например это очень важно, чтобы не было ощущения, что я в подвале), люблю когда светло и тепло). Кухня (техника: холодильник, электрическая плита, духовой шкаф, чайник). Новые столешницы у кухонного гарнитура и фартук (стеновая панель). Холодильник чистый, без запахов, работает исправно. Очень просторная жилая комната: диван с пружинным блоком (раскладывается на 2 спальных места, по отзывам предыдущих жильцов удобно спать, хочу отметить, что от нас съезжали только "замуж" и "на повышение в другой город", что говорит как об адекватности меня как владельца, так и об адекватности соседей и самих жильцов). Шкаф с местами для хранения. Выход на лоджию. При необходимости можем привезти вам стол (офисный, рабочее место) и стул (по опыту поняли, что не всем нужно рабочее место дома, поэтому по вашему желанию, чтобы не возить туда сюда). Санузел - совмещенный. Плитка. Стиральная машинка. Коридор - свежевыкрашенные стены, приятный бежевый оттенок. В прихожей полка для обуви и шкаф для верхней одежды, сумок, других аксессуаров. Зеркало. Прекрасный вид из окна - высокий этаж, окна выходят на тихий двор, спится ночью прекрасно, не шумно. Шторы в зале плотные, можно закрывать днем и спать при необходимости. Подробнее о локации. Место очень удобное, транспортная развязка, 1 минута и вы в метро. Рядом несколько ТЦ, магазины, супермаркеты, кафе, обалденный фитнес клуб и т.д. Адекватный контингент и соседи. Нам подходят платежеспособные жильцы без детей и животных (у самой есть дети и животные, поэтому понимаю какие это риски)) Залог 20 тыс. руб. Оплата по счетчикам. Все максимально подробно постаралась заснять в обзорном видео, чтобы вы сразу понимали как что выглядит и куда вы идете.

Расположение

Другие 1-комн квартиры


1-к квартира, 29,8 кв.м

г Новосибирск, ул Кошурникова, д 23/2

Дзержинский район

37 000 /мес

отличная квартира с высокими потолками, шикарный вид на город. В шаговой доступности - метро Золотая Нива, остановка транспорта, фитнес клуб с бассейном, магазины, школы и садики. Большой двор с детск

Показать телефон

02.10.2025 7:13

Объявление № 722996

Квартира-студия, 29,8 кв.м

г Новосибирск, ул Есенина, д 12/1

Дзержинский район

М Золотая нива, 15 минут

40 000 /мес

Собственник. Никто в квартире не проживал. Сделан хороший ремонт. Сдадим на длительный срок Семейной паре Девушке Мужчине Без детей и животных Все, что видите на фото, все остается в квартире. Опл

Показать телефон

02.10.2025 7:13

Объявление № 700470

1-к квартира, 29,8 кв.м

Новосибирск Есенина 53/1

Дзержинский район

М Золотая нива

30 000 /мес

Рядом: метро "Золотая Нива", магазины, школы, сады. Квартира с мебелью и бытовой техникой: телевизор, стиральная машина, кондиционер, микроволновая печь, чайник, холодильник, пылесос, утюг, плита. Бол

Показать телефон

02.10.2025 7:13

Объявление № 354144

1-к квартира, 29,8 кв.м

Новосибирск Красина 56/1

Дзержинский район

М Березовая роща

33 000 /мес

1-комнатная квартира по адресу ул. Красина 56/1. 15этаж. 33тр. коммунальные расходы включены кроме воды и электроэнергии.

Показать телефон

02.10.2025 7:13

Объявление № 358045

Квартира-студия, 29,8 кв.м

г Новосибирск, ул Планетная, д 55/7

Дзержинский район

М Березовая роща, 9 минут

26 990 /мес

Фото =реальность = собственник. Сдаю Без комиссий и агентств для ОДНОГО человека. Упакованная на 100% студия от посуды до постельного. Цена 27000 + коммунальные с интернетом и тв. Залог 18000 руб.

Показать телефон

02.10.2025 7:13

Объявление № 685694

1-к квартира, 29,8 кв.м

г Новосибирск, ул Авиастроителей, д 39/1

Дзержинский район

М Березовая роща, 58 минут

22 000 /мес

Уютная светлая теплая квартира в тихом спокойном месте. Имеется вся необходимая мебель и кухонная бытовая техника. Возможно приобретение ТВ в счет аренды в первые 3 месяца проживания.

Показать телефон

02.10.2025 7:13

Объявление № 693344

Квартира-студия, 29,8 кв.м

г Новосибирск, ул Планетная, д 55/2

Дзержинский район

М Березовая роща, 9 минут

40 000 /мес

ЖК ГРИНАРТ. Сдам хорошую квартиру возле метро Березовая роща. Есть встроенная кухня, плита, холодильник, водонагреватель. Светлая, солнечная, просторная. свободна с 15 ноября рядом метро, парк, все м

Показать телефон

02.10.2025 7:13

Объявление № 723907

1-к квартира, 29,8 кв.м

г Новосибирск, ул Кошурникова, д 23/1

Дзержинский район

М Золотая нива, 7 минут

39 000 /мес

Cдaeтся уютная квapтира двушка студия от cобcтвенникa pядoм с метрo в шaгoвoй дocтупнoсти Золотaя Нива. В квapтире еcть вcе, pядом фитнес зал c бacceйном, мaгазины, удoбнaя тpанcпортная paзвязка, всег

Показать телефон

02.10.2025 7:13

Объявление № 703182

1-к квартира, 29,8 кв.м

г Новосибирск, ул Николая Островского, д 195/4

Дзержинский район

М Березовая роща, 15 минут

38 000 /мес

Сдается уютная однокомнатная квартира в новом доме на улице Николая Островского, 195/4. Квартира расположена на 4 этаже 25-этажного здания, построенного в 2023 году. Общая площадь квартиры составляет

Показать телефон

02.10.2025 7:13

Объявление № 686288

1-к квартира, 29,8 кв.м

г Новосибирск, пр-кт Дзержинского, д 34/2

Дзержинский район

33 000 /мес

В доме есть ozon, wildberries, продуктовый магазин, пивной магазин, магазин цветов и подарков, кафе, напротив дома остановка, рядом с домом полиция и Магнит

Показать телефон

02.10.2025 7:13

Объявление № 706632

1-к квартира, 29,8 кв.м

г Новосибирск, пр-кт Дзержинского, д 34/2

Дзержинский район

28 000 /мес

Уютная однокомнатная квартира (просторная кухня + комната) по линии метро. Аренда от собственника. Депозит 10000 + оплата по счетчикам (свет, вода). Имеется все необходимое для проживания холодильник,

Показать телефон

02.10.2025 7:13

Объявление № 696226

1-к квартира, 29,8 кв.м

г Новосибирск, ул Адриена Лежена, д 24

Дзержинский район

М Золотая нива, 8 минут

25 000 /мес

Сдаётся уютная однокомнатная квартира площадью 34,2 кв. м на третьем этаже пятиэтажного панельного дома. Дом расположен на улице Адриена Лежена в Новосибирске, всего в 8 минутах пешком от станции метр

Показать телефон

02.10.2025 7:13

Объявление № 692973

1-к квартира, 29,8 кв.м

г Новосибирск, ул Республиканская, д 17

Дзержинский район

М Березовая роща, 40 минут

30 000 /мес

Свежий ремонт. Всё новое. Укомплектована мебелью и бытовой техникой. Сдача с домашними питомца и не рассматривается.

Показать телефон

02.10.2025 7:13

Объявление № 722301

1-к квартира, 29,8 кв.м

г Новосибирск, ул Авиастроителей, д 39/1

Дзержинский район

М Березовая роща, 58 минут

25 000 /мес

Сдается на длительный срок. Квартира свободна.

Показать телефон

02.10.2025 7:13

Объявление № 694016

1-к квартира, 29,8 кв.м

г Новосибирск, ул Королева, д 27

Дзержинский район

М Березовая роща, 19 минут

22 000 /мес

Уютная квартира с свежим косметическим ремонтом. 2 остановки до метро Березовая роща. Теплый кирпичный дом. Очень светлая квартира. В зале 2 окна на 2 стороны. На длительный срок. КОМИССИЮ ЗА ПОИСК К

Показать телефон

02.10.2025 7:13

Объявление № 705036

1-к квартира, 29,8 кв.м

г Новосибирск, ул Адриена Лежена, д 23

Дзержинский район

М Золотая нива, 9 минут

30 000 /мес

Отличный ремонт. Есть вся бытовая техника- холодильник,стиральная машина, микроволновая печь, чайник, тарелочки, кружечки. Два телевизора.

Показать телефон

02.10.2025 7:13

Объявление № 723514

1-к квартира, 29,8 кв.м

Новосибирск Николая Островского, 195 (ЖК Галактика)

Дзержинский район

32 000 /мес

Свежий ремонт(март 2025),есть всё для комфортного проживания ,охраняемый двор без машин,свой парк.Сдам одной девушке/женщине или паре, без детей и животных.Залог 20.000,заезжать можно с 15.09.2025г.

Показать телефон

02.10.2025 7:13

Объявление № 648915