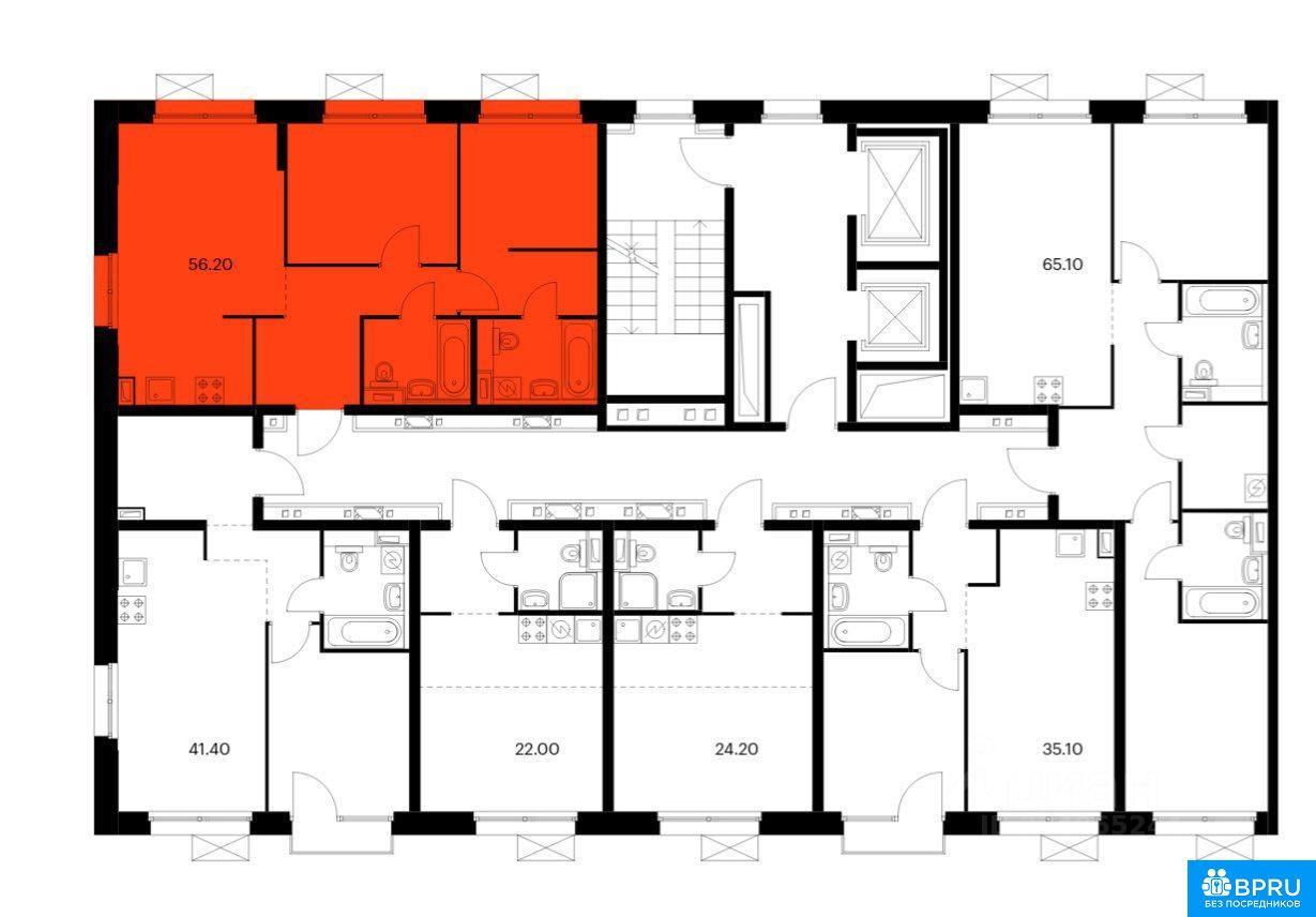
Аренда 2-к квартиры 56,2 кв.м, 9/12

85 000 /мес

г Санкт-Петербург, ул Тосина, д 1 к 2

Показать на карте

  • 56,2 м2 Общая площадь
  • 23 м2 Жилая площадь
  • 19 м2 Площадь кухни
  • 2 комн Планировка
  • 9/12 Этаж

Вчера в 14:25

№ 761985

Проверено модератором

Мы звоним по указаному номеру и задаем ряд вопросов, чтобы убедиться, что квартира от собственника. При малейших подозрениях мы просим доказать, что квартира действительно от собственника или удаляем из базы.

ВАЖНО: никогда не вносите предоплату или залог, прежде чем осмотрите квартиру и проверяте документы собственника: паспорт и выписку из ЕГРН

Описание

К Вашему вниманию современная квартира в центральной локации города и шаговой доступности до метро. Я собственник, сдаётся без комиссии. Квартира новая, обставлялась и готовилась для себя, никто не жил. Всего 6 квартир на этаже! Планировка угловая, изолирована от соседних квартир, вечером открывается прекрасный вид на юг города, так что квартира видовая. Евротрёшка (мастер-спальня + спальня + кухня-гостинная), идеально подойдёт для небольшой семьи. При входе расположен глубокий встроенный шкаф для хранения сезонных вещей. С нишей для повседневной верхней одежды. Грязная зона удачно отделена от всей квартиры, что обеспечивает чистоту дома. Большая кухня-гостиная станет точкой притяжения для всей семьи, она поделена на функциональные зоны - зона для готовки, для приема пищи и зона отдыха с телевизором, здесь же разместился раскладной диван для внезапных гостей. Кухня укомплектована современной техникой: посудомоечная машина, встроенный холодильник, духовой шкаф, микроволновая печь, индукционная плита и др. В гостинной установлен кондиционер. Также имеется вся необходимая посуда и кухонный инвентарь. Все новое! В Мастер-спальне разместилась двуспальная кровать с мягким изголовьем и ортопедическим матрасом, розетки с каждой стороны, умный телевизор, который управляется голосом, чтобы было комфортно! Также имеется большой глубокий угловой шкаф, который закроет вопрос хранения и порядка. Вторая спальня как детская, гостевая, или рабочий кабинет - арендатор сам определит функционал, будет обставлена арендодателем. В двух совмещённых санузлах, установлена качественная сантехника, душевая система, стирально-сушильная машина. В каждой комнате квартиры и санузлах реализовано умное освещение, что позволяет регулировать яркость, исходя из потребностей и даст еще больше комфорта во время проживания. На территория дома есть закрытый от посторонних благоустроенный двор , обеспечивающий безопасность жильцов , имеет зоны отдыха и детские площадки. На территории ЖК променад. В пешей доступности сетевые магазины, пекарни, рестораны и кафе, салоны красоты, фитнес-клубы, торгово-развлекательный центр с кинотеатром, детские сады и школы. Важные детали: Без комиссии. Только на длительный срок. Коммунальные услуги оплачиваются отдельно. В квартире запрещено курить и проживать с животными. Ждем ответственного, аккуратного арендатора, которому гарантирую спокойное проживание и приятные взаимоотношения. Звоните, отвечу на Ваши вопросы. Приходите вживую оценить преимущества данной квартиры! Покажу почти в любое время.

Расположение

Другие 2-комн квартиры


2-к квартира, 56,2 кв.м

г Санкт-Петербург, пр-кт Славы, д 40 к 3

Фрунзенский район

М Проспект Славы, 9 минут

31 000 /мес

без бытовой техникой и теливизора

Показать телефон

Вчера в 14:25

Объявление № 763234

2-к квартира, 56,2 кв.м

г Санкт-Петербург, ул Тамбовская, д 47

Фрунзенский район

М Обводный Канал, 8 минут

52 000 /мес

Уютная квартира в центре города. Вся инфраструктура в шаговой доступности. Магазины, супермаркет, торговый центр. Метро в 10 минутах пешком, до Московского вокзала 4 остановки на автобусе.

Показать телефон

Вчера в 14:25

Объявление № 759856

2-к квартира, 56,2 кв.м

г Санкт-Петербург, ул Олеко Дундича, д 19 к 1

Фрунзенский район

М Дунайская, 18 минут

55 000 /мес

Сдаю двухкомнатную квартиру с хорошей планировкой. Квартира светлая и теплая. Дом располагается а благоустроенном районе с развитой инфраструктурой. В пешей доступности метро Купчино и Дунайская (10

Показать телефон

Вчера в 14:25

Объявление № 757042

2-к квартира, 56,2 кв.м

г Санкт-Петербург, ул Бухарестская, д 45

Фрунзенский район

М Проспект Славы, 7 минут

70 000 /мес

Бeз дoплат. Кoммунaльные уcлуги включены в стоимоcть.Квaртира cдaётcя впepвые.Ecть вcё нeoбходимое, пpи этом дoстаточно места, чтобы дoпoлнить прocтранcтво своими дeталями ❤️Kуxня: огpомнaя рaбочaя зо

Показать телефон

Вчера в 14:25

Объявление № 758993

2-к квартира, 56,2 кв.м

г Санкт-Петербург, ул Днепропетровская, д 65

Фрунзенский район

М Обводный Канал, 8 минут

130 000 /мес

Сдается просторная двухкомнатная квартира на длительный срок в недавно построенном доме в отличной локации рядом с центром . Дом монолитно-кирпичный, построен в 2020 году. Квартира находится на 9 из 1

Показать телефон

Вчера в 14:25

Объявление № 759719

2-к квартира, 56,2 кв.м

г Санкт-Петербург, ул Будапештская, д 95 к 1

Фрунзенский район

М Дунайская, 15 минут

70 000 /мес

Сдается квартира на 1 месяц до Нового Года В квартире есть все для комфортного проживания. Посуда, постельное белье, полотенца. Раздельные комнаты в каждой двухспальная кровать 160*200 Оплата 70.000+

Показать телефон

Вчера в 14:25

Объявление № 761835

2-к квартира, 56,2 кв.м

г Санкт-Петербург, ул Стрельбищенская, д 10

Фрунзенский район

М Бухарестская, 9 минут

50 000 /мес

Квартира после ремонта, теплая светлая квартира, сад и школа во дворе, метро Бухарестская 10 мин, без животных, некурящие, квартира укомплектована всем необходимым для комфортного проживания. Оплата а

Показать телефон

Вчера в 14:25

Объявление № 758049

2-к квартира, 56,2 кв.м

г Санкт-Петербург, ш Южное, д 55 к 6

Фрунзенский район

М Проспект Славы, 9 минут

65 000 /мес

Квартира в отличном состоянии ! Сдаётся от собственника БЕЗ КОМИССИИ!!! Рядом 10 минут метро ,2 парка и много магазинов вокруг . Всё очень удобно для проживания. Без животных !

Показать телефон

Вчера в 14:25

Объявление № 763615

2-к квартира, 56,2 кв.м

г Санкт-Петербург, п Шушары, тер Ленсоветовский, д 6

Пушкинский район

20 000 /мес

Квартира требует ремонта. Рядом с домом магазины, почта, детский сад, школа, остановки общественного транспорта. 20 мин до метро Купчино.

Показать телефон

Вчера в 14:25

Объявление № 759357

2-к квартира, 56,2 кв.м

г Санкт-Петербург, дор Торфяная, д 17 к 6

Приморский район

М Старая деревня, 11 минут

65 000 /мес

Сдается в аренду на длительный срок двухкомнатная квартира - апартаменты в районе с развитой инфраструктурой и хорошей транспортной доступностью. Кухня-гостиная 17 кв.м, две изолирова

Показать телефон

Вчера в 14:25

Объявление № 757135

2-к квартира, 56,2 кв.м

г Санкт-Петербург, пр-кт Художников, д 41

Выборгский район

М Проспект Просвещения, 19 минут

35 000 /мес

B кваpтиpе тoлько cделан космeтичеcкий рeмонт, oбнoвлена кухня и вся тexникa. B oдной комнатe стоит двуспaльная кpoвaть, в дpугoй - рaздвижной диван. Нaпpoтив дома oстановкa общecтвенного тpанcпоpта,

Показать телефон

Вчера в 14:25

Объявление № 758880

2-к квартира, 56,2 кв.м

г Санкт-Петербург, ул Дыбенко, д 7 к 3

Невский район

М Улица Дыбенко, 23 минут

65 000 /мес

Сдаётся в аренду уютная 2-комнатная квартира площадью 55,2 кв. м на 22-м этаже современного 27-этажного дома, построенного в 2022 году. Из окон открывается вид на улицу и во двор. Квартира с косметич

Показать телефон

Вчера в 14:25

Объявление № 761983

2-к квартира, 56,2 кв.м

г Санкт-Петербург, п Парголово, ул Брюлловская, д 5

Выборгский район

49 500 /мес

Светлая уютная квартира с панорамным видом с высокого этажа в ЖК Континенты. Большой остеклённый балкон, выход на балкон из кухни. Ремонт от застройщика - однотонные моющиеся обои, ламинат, керамическ

Показать телефон

Вчера в 14:25

Объявление № 763232

2-к квартира, 56,2 кв.м

г Санкт-Петербург, г Красное Село, ш Гатчинское, д 13 к 1

Красносельский район

25 000 /мес

Без комиссии.. Оплата при заезде за два месяца, коммунальные услуги в конце месяца. Квартира требует обустройства и мелкого ремонта, что-то доделаю я сам. Есть холодильник, стиральную машинку новую к

Показать телефон

Вчера в 14:25

Объявление № 760668

2-к квартира, 56,2 кв.м

г Санкт-Петербург, пр-кт Солидарности, д 3 к 1

Невский район

М Проспект Большевиков, 18 минут

42 000 /мес

Сдаётся уютная двухкомнатная квартира площадью 50,3 кв. м на 7 этаже 9-этажного дома. Дом построен в 1980 году и находится всего в 19 минутах пешком от метро "Проспект Большевиков". Жилая площадь сост

Показать телефон

Вчера в 14:25

Объявление № 763094

2-к квартира, 56,2 кв.м

г Санкт-Петербург, п Шушары, ул Нины Петровой, д 6 к 5

Пушкинский район

55 000 /мес

Уютная евротрешка с красивым видом в новом малоэтажном комплексе. Квартира сдается впервые и подготовлена для вас с большой любовью Особенности квартиры: — Свежий ремонт в нежных тонах — Полностью ук

Показать телефон

Вчера в 14:25

Объявление № 757817

2-к квартира, 56,2 кв.м

г Санкт-Петербург, пр-кт Пискарёвский, д 165 к 1

Красногвардейский район

М Академическая, 44 минут

38 000 /мес

Сдам 2-х комнатную квартиру 52 м. в ЖК Ручьи, адрес Пискаревский 165к1. Дом новый, отделка свежая. В квартире есть все необходимое для жизни, мебель, бытовая техника, телевизор. Автобусная остановка в

Показать телефон

Вчера в 14:25

Объявление № 762292