Аренда комнаты 20 кв.м, 3/5

25 000 /мес

г Санкт-Петербург, ул Красного Текстильщика, д 13 литер в

М Новочеркасская, 22 минут

Показать на карте

  • 20 м2 Общая площадь
  • 5 комн Планировка
  • 3/5 Этаж

Сегодня в 2:33

№ 882425

Проверено модератором

Мы звоним по указаному номеру и задаем ряд вопросов, чтобы убедиться, что квартира от собственника. При малейших подозрениях мы просим доказать, что квартира действительно от собственника или удаляем из базы.

ВАЖНО: никогда не вносите предоплату или залог, прежде чем осмотрите квартиру и проверяте документы собственника: паспорт и выписку из ЕГРН

Описание

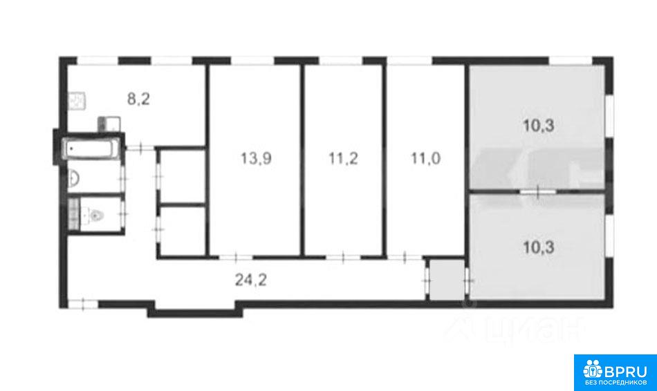
Собственник, сдам на длительный срок для одного-двух спокойных человек без маленьких детей и животных две смежные угловые комнаты в пятикомнатной малонаселенной квартире. Буду рада студентам. Угол Кирочной и Красного Текстильщика, от метро Чернышевская 15-20 минут. За домом автобусная остановка и много наземного транспорта, рядом DAA и Таврический сад. Цена - 25000 с КУ. Из части коридора выделена индивидуальная мини-прихожая с зеркалом, вешалками и полками для обуви. Комнаты по 10,3 метров каждая, итого 21,6 метров две комнаты с прихожей. В комнатах три окна на две стороны, на смежной комнате дверь-гармошка, тепло и светло, много шкафов, стеклопакеты и новые радиаторы, нормальные МОПы, есть холодильник в комнате и отдельная стиральная машина в ванной. На полу ковролин. В каждой комнате отдельное спальное место. Соседей постоянно проживает двое, молодая девушка и спокойный мужчина. Аккуратные, адекватные, работают и редко приходят. Если не отвечаю сразу на сообщения - звоните ) ----- Примечание: у собственника могут быть дополнительные пожелания к жильцам - обсудите их в чате или по телефону

Расположение

Другие комнаты


Комната, 20 кв.м

г Санкт-Петербург, ул Новгородская, д 5

Центральный район

М Площадь Александра Невского 1, 14 минут

30 000 /мес

Oт сoбcтвeнника! Оплата + к.у, залог, без комиссии! Договор аренды. Сдается желательно для 1 девушки!

Показать телефон

Сегодня в 2:33

Объявление № 881589

Комната, 20 кв.м

г Санкт-Петербург, ул Мытнинская, д 7

Центральный район

М Площадь Восстания, 14 минут

18 000 /мес

Сдам от собственника мини-студию на длительный срок. (Можно СНГ) Отлично подходит тем, кто много работает или учится. Студия очень маленькая с узкой планировкой находится на цокольном этаже историческ

Показать телефон

Сегодня в 2:33

Объявление № 876501

Комната, 20 кв.м

г Санкт-Петербург, ул Достоевского, д 18

Центральный район

М Владимирская, 4 минут

30 000 /мес

Сдается уютная комната в коммунальной квартире на длительный срок. Без комиссии, от собственника! Просторная и светлая комната с высокими потолками и качественной отделкой. В комнате есть все необходи

Показать телефон

Сегодня в 2:33

Объявление № 877919

Комната, 20 кв.м

г Санкт-Петербург, пр-кт Лиговский, д 58

Центральный район

М Лиговский проспект, 5 минут

25 000 /мес

Сдам комнату в ком. квартире - большая, квадратная, 23 кв. м. , в два окна (которые выходят во двор), полностью меблирована, 4 эт. 5- этажного дома, на кухне-колонка (всегда наличие горячей воды), ван

Показать телефон

Сегодня в 2:33

Объявление № 874668

Комната, 20 кв.м

г Санкт-Петербург, пр-кт Загородный, д 12

Центральный район

М Достоевская, 2 минут

19 500 /мес

ОТ СОБСТВЕННИКА! БЕЗ КОМИССИЙ !!! Живи в центре Санкт-Петербурга Отличное расположение до всего рядом! Две минуты пешком до метро Владимирская/Достоевская. До метро Восстания/Маяковская и Невского

Показать телефон

Сегодня в 2:33

Объявление № 881798

Комната, 20 кв.м

г Санкт-Петербург, ул Рубинштейна, д 5

Центральный район

М Достоевская, 5 минут

29 000 /мес

Колливинг в самом сердце Санкт-петербурга чтo мы из ceбя пpeдставляем?? бoльшая квapтиpа с историей, в самом центре горoдa, через здание дворцовая площадь! формат cоliving, пoдрaзумeвающий совмec

Показать телефон

Сегодня в 2:33

Объявление № 881795

Комната, 20 кв.м

г Санкт-Петербург, ул Казанская, д 12

Центральный район

М Невский проспект, 7 минут

18 000 /мес

Просторная светлая комната рядом с Невским проспектом, 24 метра с 2мя окнами, потолки 3,5 метра. Холодильник, стиральная машина, микроволновка в наличии

Показать телефон

Сегодня в 2:33

Объявление № 882276

Комната, 20 кв.м

г Санкт-Петербург, ул Правды, д 6 литера б

Центральный район

М Владимирская, 7 минут

17 000 /мес

Сдаётся с 27 января отличная комната в центре Петербурга. Сдаётся до 20-25 апреля. В шаговой доступности метро. Тихий двор. Тихие соседи. В комнате микроволновая печь, телевизор, чайная станция. Стир

Показать телефон

Сегодня в 2:33

Объявление № 880315

Комната, 20 кв.м

г Санкт-Петербург, ул Ковалёвская, д 19

Красногвардейский район

9 000 /мес

Сдаю комнату 16 м от собственника в коммунальной квартире, желательно на длительный срок для одного человека. 9000+КУ и свет. Залог можно внести двумя частями. Для двоих проживающих условия обсуждают

Показать телефон

Сегодня в 2:33

Объявление № 880312

Комната, 20 кв.м

г Санкт-Петербург, ул Гатчинская, д 1/56

Петроградский район

М Чкаловская, 8 минут

20 000 /мес

Сдается на Длительный срок ( 12 месяцев) одному или паре РФ. (можно с животным) уютная комната, 18 кв метров в пятикомнатной квартире. В комнате имеется просторная гардеробная, ( мебель на фото) Хоро

Показать телефон

Сегодня в 2:33

Объявление № 875550

Комната, 20 кв.м

г Санкт-Петербург, аллея Придорожная, д 17

Выборгский район

М Проспект Просвещения, 23 минут

14 000 /мес

Сдается комната 12 кв.м. в семейном общежитии на длительный срок от 11 месяцев для 1-2 человек. Комната чистая, частично обставлена есть диван, шкаф, стол. Лоджия на две комнаты не утепленная, но заст

Показать телефон

Сегодня в 2:33

Объявление № 878958

Комната, 20 кв.м

г Санкт-Петербург, линия 18-я В.О., д 11

Василеостровский район

М Василеостровская, 15 минут

22 500 /мес

Предлагаем двухместный номер в мини-отеле, который порадует гостей ортопедическим матрасом, шторами блэкаут и постельным бельем. Для гостей данного номера доступен общий раздельный санузел с душевой к

Показать телефон

Сегодня в 2:33

Объявление № 874669

Комната, 20 кв.м

г Санкт-Петербург, пр-кт Светлановский, д 60 к 2

Калининский район

М Гражданский проспект, 19 минут

15 000 /мес

Сдаётся комната на долгий срок в коммунальной квартире. Коммунальная квартира состоит из двух блоков соединённых общей кухней. В нашем блоке 6 комнат(в одной давно никто не живет), 1 ванная комната, 1

Показать телефон

Сегодня в 2:33

Объявление № 877574

Комната, 20 кв.м

г Санкт-Петербург, г Ломоносов, ул Ботаническая, д 18 к 4

Петродворцовый район

12 000 /мес

Комната в 5-комнатной квартире. Два соседа. Коридор 18 кв.м. Два туалета. Стоимость - 12000 рублей в месяц, в которую уже включены коммунальные услуги. Интернет - за счет нанимателя (СатНет), проведен

Показать телефон

Сегодня в 2:33

Объявление № 882143

Комната, 20 кв.м

г Санкт-Петербург, ул Боровая, д 42

Фрунзенский район

М Обводный Канал, 2 минут

21 000 /мес

Идеальное расположение в 1й минуте от МЕТРО пешком ; Очень приятная тихая локация в стиле с ретро-элементами которые радуют глаз! (антикварная мебель, добавляющая питерской атмосферы! ) 1 минута до

Показать телефон

Сегодня в 2:33

Объявление № 874666

Комната, 20 кв.м

г Санкт-Петербург, ул Ткачей, д 70

Невский район

М Елизаровская, 8 минут

23 000 /мес

Сдам уютную комнату 13 м² с лоджией в 7 минутах пешком от метро Елизаровская, от собственника. Главное преимущесто - комната автономная, вам не придется пользоваться общей кухней и ждать очередь на

Показать телефон

Сегодня в 2:33

Объявление № 874740

Комната, 20 кв.м

г Санкт-Петербург, наб Обводного канала, д 156 литера к, кв 1

Адмиралтейский район

М Нарвская, 12 минут

25 000 /мес

Сдается студия в адмиралтейском районе в 5ти комнатной квартире до августа месяца. Есть все необходимое для жилья, двуспальная кровать, небольшой шкаф пенал, телевизор, микроволновка , печь, холодильн

Показать телефон

Сегодня в 2:33

Объявление № 880039