Вчера в 19:25
№ 968792
Мы звоним по указаному номеру и задаем ряд вопросов, чтобы убедиться, что квартира от собственника. При малейших подозрениях мы просим доказать, что квартира действительно от собственника или удаляем из базы.
ВАЖНО: никогда не вносите предоплату или залог, прежде чем осмотрите квартиру и проверяте документы собственника: паспорт и выписку из ЕГРН
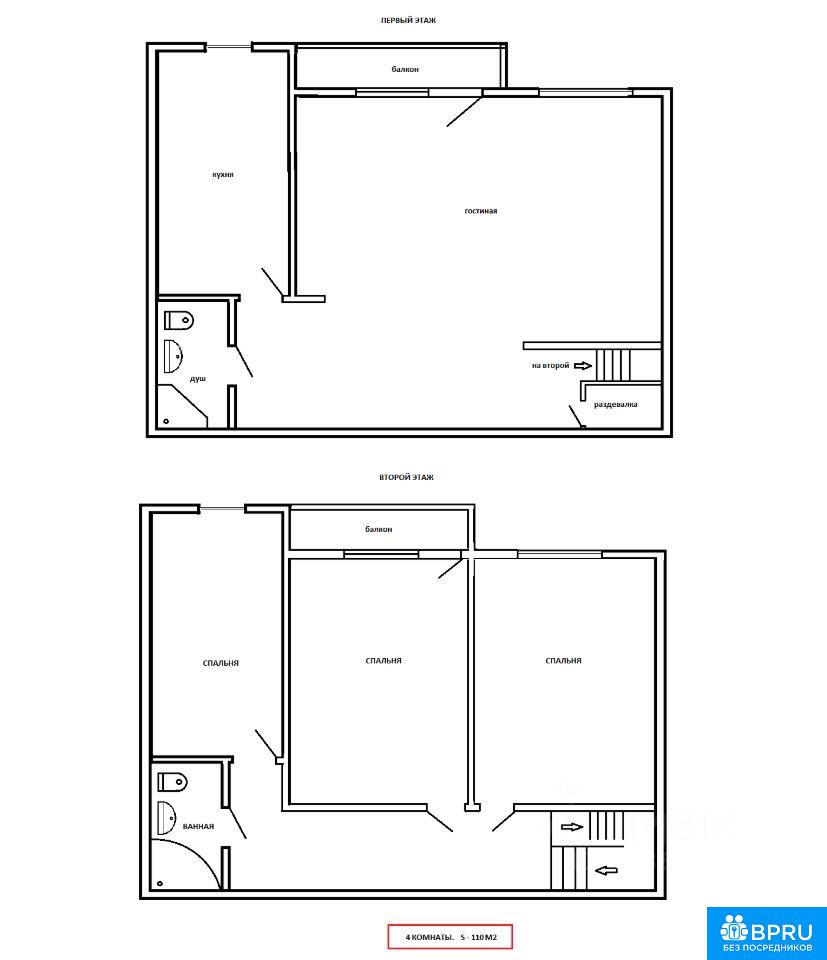
Четырехкомнатная двухуровневая квартира в центре города ( напротив ГУМ, рядом ЦУМ). Элитный кирпичный дом на 36 квартир, окна во двор, два санузла ( душевая и ванная комната, два балкона, свежий косметический ремонт. В квартире имеется вся необходимая для проживания бытовая кухонная техника, посуда, стиральная машина, телевизор, утюг, пылесос (до мая), сушилка для белья, подушки, одеяло, постельное белье. Все новое в упаковках с этикетками.
У вас есть учетная запись? Войти
У вас есть учетная запись? Войти
Введите номер телефона
Спасибо за регистрацию
Чтобы завершить регистрацию и подтвердить ваши контактные данные, пожалуйста, сделайте бесплатный звонок на указанный ниже номер.
Ваш звонок абсолютно бесплатный и займет всего несколько секунд.