Сегодня в 20:00
№ 734702
Мы звоним по указаному номеру и задаем ряд вопросов, чтобы убедиться, что квартира от собственника. При малейших подозрениях мы просим доказать, что квартира действительно от собственника или удаляем из базы.
ВАЖНО: никогда не вносите предоплату или залог, прежде чем осмотрите квартиру и проверяте документы собственника: паспорт и выписку из ЕГРН
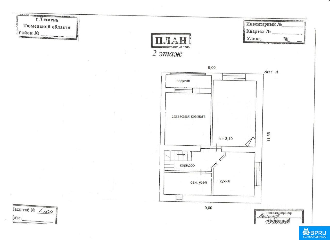
Сдам КОМНАТУ 27 кв.м. ЖИЛОЙ площади( 57 кв.м ОБЩЕЙ), в пяти комнатной двухуровневой квартире, в районе ул.Летней и Льва Каретина, район Сельхоз академии (Аграрного университета) и Экопарка Затюменский. Сдаваемая комната расположена на 2-ом этаже (план этажа на фото). Сдаётся ТОЛЬКО одинокой женщине или девушке студентке. Порядочность, чистоплотность и платёжеспособность от претендентки - ОБЯЗАТЕЛЬНЫ. Есть всё необходимое для жизни или учёбы, и даже больше. За комнатой (смотри фото плана этажа) закреплён санузел 9 кв.м., кухня 14 кв.м. и коридор 7 кв.м. Первый этаж занимают хозяева. В шаговой доступности магазин, остановки общественного транспорта, стадион-конюшня-бассейн-прогулочные трассы-спортплощадка Сельхоз академии. Сдаваемая комната фактически находятся на территории Сельхоз академии (Аграрного университета). Является ИДЕАЛЬНЫМ вариантом для тех кто учится или работает: в Сельхоз Академии (Аграрном университете), мед. городке по ул. Барнаульской, в районе Дома обороны, в Аэропорту или жд вокзале. Фото комнаты все реальные. Оплата помесячно. Коммунальные включены в стоимость арендной платы. Агентам беспокоить только при наличии реальной претендентки. Хозяйка.
У вас есть учетная запись? Войти
У вас есть учетная запись? Войти
Введите номер телефона
Спасибо за регистрацию
Чтобы завершить регистрацию и подтвердить ваши контактные данные, пожалуйста, сделайте бесплатный звонок на указанный ниже номер.
Ваш звонок абсолютно бесплатный и займет всего несколько секунд.