Сегодня в 17:03
№ 769439
Мы звоним по указаному номеру и задаем ряд вопросов, чтобы убедиться, что квартира от собственника. При малейших подозрениях мы просим доказать, что квартира действительно от собственника или удаляем из базы.
ВАЖНО: никогда не вносите предоплату или залог, прежде чем осмотрите квартиру и проверяте документы собственника: паспорт и выписку из ЕГРН
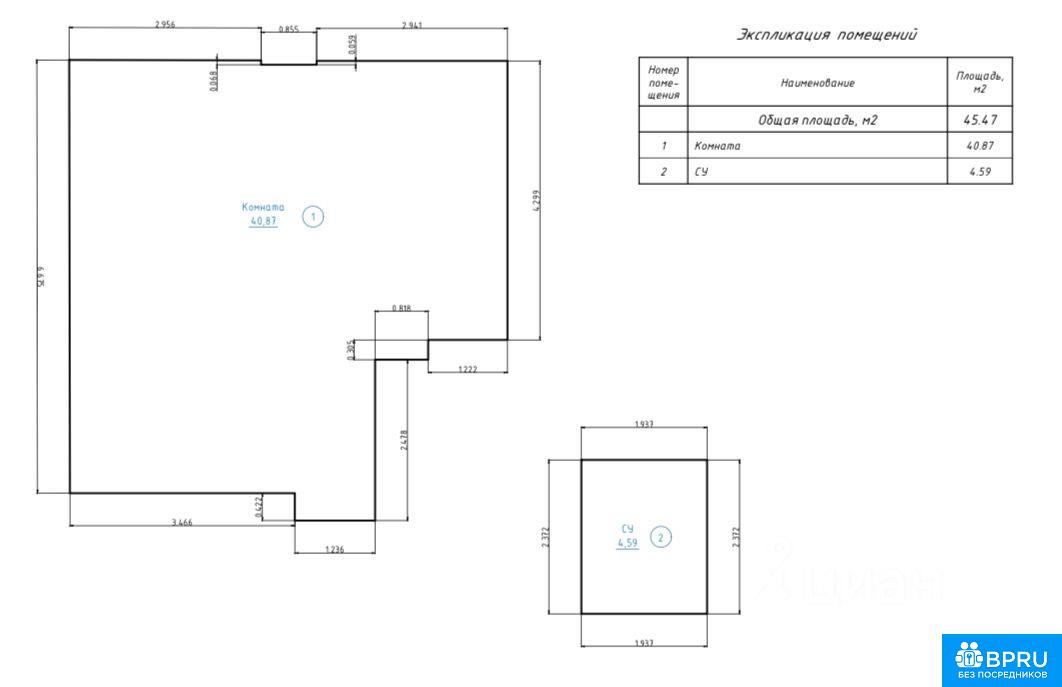
Свободная планировка (open space) 45.5 м² в НОВОМ доме (сдан в ноябре 2025)! Центральный район, мкр. Черемушки. Сдаю чистую, светлую квартиру в только что сданном доме. Отделка от застройщика (так называемая белая коробка): стяжка, штукатурка, окна, электрические точки, санузел подготовлен. Ремонта нет — это пространство для ваших идей! Главные преимущества: Новостройка (ноябрь 2025): Современные материалы, новые инженерные системы. Идеальная под склад, мастерскую или хранение. Большое свободное пространство 45.5 м². Можно жить! Если вы готовы сделать ремонт под себя — это отличный чистый холст. Солнечная, закатная сторона. Уникальный вид: Панорамное французское остекление открывает вид на Зеленый поселок, озеро, реку Кубань и даже горы Адыгеи! Виды потрясающие, особенно на закате. Планировка: Свободная (open space), можно зонировать как угодно. Район: Центральный Краснодар, мкр. Черемушки. Дом PRIME класса: есть охрана, видеонаблюдение и т.п. Что важно знать: Ремонта, кухни, сантехники (кроме канализационных выводов и стояков), туалета — нет. Квартира не загромождена, абсолютно пустая. Дом сдан, все коммуникации подключены. Стоимость: 20 000 руб./месяц (комуслуги плачу я, а они выходят от 5000₽). Кому подойдет: Для бизнеса (склад), в качестве хранилища, или для тех, кто хочет сделать авторский ремонт с нуля в новой квартире с лучшими видами.
У вас есть учетная запись? Войти
У вас есть учетная запись? Войти
Введите номер телефона
Спасибо за регистрацию
Чтобы завершить регистрацию и подтвердить ваши контактные данные, пожалуйста, сделайте бесплатный звонок на указанный ниже номер.
Ваш звонок абсолютно бесплатный и займет всего несколько секунд.