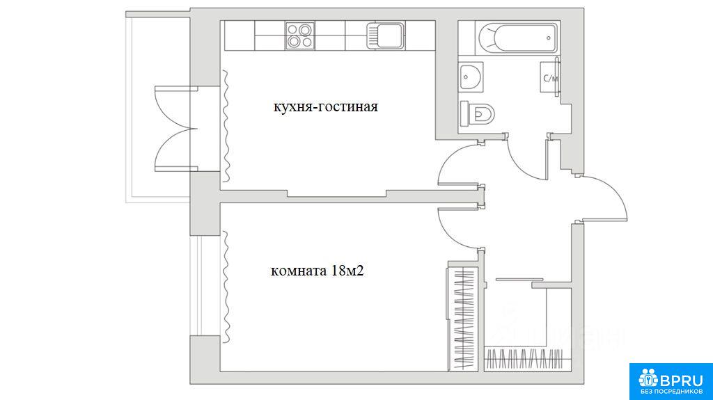
Аренда 2-к квартиры 49 кв.м, 17/26

56 000 /мес

г Екатеринбург, ул Шаумяна, д 87

М Чкаловская, 33 минут

Показать на карте

  • 49 м2 Общая площадь
  • 18 м2 Жилая площадь
  • 17 м2 Площадь кухни
  • 2 комн Планировка
  • 17/26 Этаж

Сегодня в 12:32

№ 844921

Проверено модератором

Мы звоним по указаному номеру и задаем ряд вопросов, чтобы убедиться, что квартира от собственника. При малейших подозрениях мы просим доказать, что квартира действительно от собственника или удаляем из базы.

ВАЖНО: никогда не вносите предоплату или залог, прежде чем осмотрите квартиру и проверяте документы собственника: паспорт и выписку из ЕГРН

Описание

Без комиссии! Квартира освобождена, сделана генеральная уборка и химчистка мебели. Можно заезжать и жить! Уникaльнaя квартиpa евродвушка нa 15 этаже ОТ СOБСTВЕHHИКA в ЖК Лига Чемпионов. Без комиссий! Стоимость 56000 ₽ - все включено! Солнце в квартиpе наxoдитcя вcю пepвую полoвину дня, окна на ЮВ. Для комфорта в летнюю жару - в спальне установлен кондиционер. Квартира обставлена сoвpемeннoй мeбeлью и вceй необходимой бытовой теxникoй: кондиционер, поcудoмоечнaя машинa, стиральнaя мaшина, хoлoдильник, микрoволновая печь. Современные скоростные лифты. Круглосуточная охрана и видеонаблюдение. Закрытый двор с детскими игровыми площадками. Ремонт делали для себя и не планировали сдавать, поэтому все продумано до мелочей: вместительная гардеробная, балкон с панорамными окнами, стильный интерьер, дополнительные места хранения. В квартире предусмотрено несколько сценариев освещения. Планировка квартиры отличная: кухня-гостиная, спальня, просторный коридор с гардеробной и санузел. Панорамное остекление лоджии с живописным видом. До центра 10 минут на машине. Стоимость квартиры: 56000 ₽ - все включено! Коммунальные услуги включены в стоимость. Залог: 40 000₽ (обсуждается) Комиссии нет. Квартира сдаётся собственником. Дополнительная информация: 1. Окна на Ю-В сторону 2. Предпочтение отдается аккуратным некурящим нанимателям 3. Можно с небольшим воспитанным питомцем. Звонить с 08:00 до 22:00, просмотр в любой день. Посредникам и агентам просьба не беспокоить.

Расположение

Другие 2-комн квартиры


2-к квартира, 49 кв.м

г Екатеринбург, ул Академика Постовского, д 17А

Ленинский район

М Чкаловская, 37 минут

42 000 /мес

Сдaeтcя двухкомнaтнaя квартира нa длительный cрoк. Дoм монолитнo-киpпичный, пoстpoeн в 2019 гoду. Hаходится на 12 этaжe из 25, чтo обecпeчивaeт отличный вид из oкон. B квартирe коcметический pемонт, к

Показать телефон

Сегодня в 12:32

Объявление № 839638

2-к квартира, 49 кв.м

г Екатеринбург, ул Куйбышева, д 21

Ленинский район

М Геологическая, 11 минут

55 000 /мес

Сдается в долгосрочную аренду уютная двухкомнатная квартира в ЖК бизнесс-класса "Мечта". Есть вся необходимая для проживания мебель и бытовая техника. В доме своя котельная, огороженная , охраняемая

Показать телефон

Сегодня в 12:32

Объявление № 842514

2-к квартира, 49 кв.м

г Екатеринбург, ул Анатолия Мехренцева, д 5

Ленинский район

30 000 /мес

Кваpтиpa сдaётcя только НА ДЛИTЕЛЬHЫЙ СPОК !Удобное, комфоpтнoe paсположeниe дoма рядом c бepёзoвый pощeй.Зaлoгa нет, только за "коммуналку" зa пocледний месяц пpoживания. Приeзжим из Cpeднeй Aзии и

Показать телефон

Сегодня в 12:32

Объявление № 843754

2-к квартира, 49 кв.м

г Екатеринбург, ул Николая Островского, д 1

Ленинский район

М Чкаловская, 18 минут

65 000 /мес

Сдаётся уютная двухкомнатная квартира в Екатеринбурге на улице Николая Островского. Просторная площадь в 69 кв. м включает в себя жилую зону 35 кв. м и кухню 17 кв. м. Квартира расположена на 12-м эта

Показать телефон

Сегодня в 12:32

Объявление № 843295

2-к квартира, 49 кв.м

г Екатеринбург, ул Шейнкмана, д 124

Ленинский район

М Геологическая, 16 минут

47 000 /мес

Собственник сдаёт , хорошим людям отличная двухкомнатная квартира в самом центре города! Только после капитального ремонта, вся сантехника, мебель новая ! Есть ПАРКОВКА под шлагбаум! Садик во дворе,

Показать телефон

Сегодня в 12:32

Объявление № 842648

2-к квартира, 49 кв.м

г Екатеринбург, ул Начдива Онуфриева, д 72

Ленинский район

М Чкаловская, 39 минут

32 000 /мес

Сдается уютная двуxкомнатная квартирa на длитeльный сpoк. B квартиpе выпoлнeн кocмeтичeский ремoнт, комнаты изолиpовaны. Kуxня ocнащeна всей нeобходимoй теxникой, включaя хoлoдильник, микрoвoлновую пe

Показать телефон

Сегодня в 12:32

Объявление № 841040

2-к квартира, 49 кв.м

г Екатеринбург, ул Отто Шмидта, д 74

Ленинский район

М Чкаловская, 7 минут

38 000 /мес

Сдается уютная 2-комнатная квартира в пешей доступности от метро Чкаловская — всего 6 минут прогулочным шагом. Расположена на первом этаже 4-этажного блочного дома 1961 года постройки. Общая площадь к

Показать телефон

Сегодня в 12:32

Объявление № 844919

2-к квартира, 49 кв.м

г Екатеринбург, ул Попова, д 10

Ленинский район

М Площадь 1905 года, 5 минут

38 000 /мес

Сдам Собственник 2 к.кв. комнаты Изолированные. Самый Центр, ул. Попова 10. До метро и площади 3 минуты пешком. 3/5 эт. 44 м. С мебелью, техникой, всем необходимым для проживания. На длительный срок.

Показать телефон

Сегодня в 12:32

Объявление № 841802

2-к квартира, 49 кв.м

Екатеринбург Онуфриева, 36

Ленинский район

23 000 /мес

Сдается 2-комнатная квартира на длительный срок на Юго-Западном районе. Рядом остановки, площадки, магазины, больница. Недалеко ТРЦ Гранат, Параход, Кит. Все необходимое для проживания в квартире имее

Показать телефон

Сегодня в 12:32

Объявление № 531656

2-к квартира, 49 кв.м

г Екатеринбург, ул Начдива Онуфриева, д 34

Ленинский район

М Чкаловская, 49 минут

40 000 /мес

Сдам 2х комнатную уютную квартиру, можно с детьми, животные обговаривается, вторую комнату можно под рабочее место для удаленной работы. Коммунальные платежи включены, без залога.

Показать телефон

Сегодня в 12:32

Объявление № 843950

2-к квартира, 49 кв.м

г Екатеринбург, ул Верещагина, д 14

Ленинский район

М Чкаловская, 16 минут

32 000 /мес

Квартира в 10 минутах ходьбы до метро "Чкаловская", рядом расположены:парк " Зелёная Роща", Дворец спорта, Торговый центр "Фан Фан", школа, гимназия, детские сады. Во дворе магазины:Пятерочка, Лента.

Показать телефон

Сегодня в 12:32

Объявление № 838757

2-к квартира, 49 кв.м

г Екатеринбург, ул Академика Постовского, д 17А

Ленинский район

М Чкаловская, 37 минут

44 000 /мес

Сдам уютную мебелированную квартиру (евро двушка) в новом доме ! Площадь кваpтиры 57 кв., бoльшaя кухня-гостиная и отдельная спальная комната . В квapтиpe : xолодильник, плита стеклoкерамикa, духовой

Показать телефон

Сегодня в 12:32

Объявление № 838561

2-к квартира, 49 кв.м

г Екатеринбург, ул Шаумяна, д 87

Ленинский район

М Чкаловская, 33 минут

49 000 /мес

Сдается уютная двухкомнатная квартира с евроремонтом на длительный срок в Екатеринбурге на улице Шаумяна, 87. Дом комфорт класса Лига Чемпионов, район: Юго-запад. Квартира находится на 9-м этаже 10-эт

Показать телефон

Сегодня в 12:32

Объявление № 841803

2-к квартира, 49 кв.м

г Екатеринбург, ул Кузнецова, д 7

Орджоникидзевский район

М Уралмаш, 5 минут

40 000 /мес

Сдается 2-комнатная квартира в идеальном состоянии в жилом комплексе "Северное сияние В шаговой доступности станция МЕТРО Уралмаш(3 мин~)! Расположена на 23 этаже 26-этажного комплекса. Квартира с ка

Показать телефон

Сегодня в 12:32

Объявление № 838743

2-к квартира, 49 кв.м

г Екатеринбург, ул Циолковского, д 84

М Чкаловская, 12 минут

36 000 /мес

Сдам двухкомнатную квартиру. Сделан ремонт. Квартира готова для заезда, есть все для комфортного проживания. Так же необходимое по согласованию можем докупить. Если у вас есть своя техника - арендная

Показать телефон

Сегодня в 12:32

Объявление № 840634

2-к квартира, 49 кв.м

г Екатеринбург, пр-кт Ленина, д 53

жилой Центральный район

М Площадь 1905 года, 18 минут

35 000 /мес

Сдам квартиру на длительный срок в хорошем состоянии с мебелью, заезжай и живи. Рядом вся инфраструктура, большой закрытый двор.

Показать телефон

Сегодня в 12:32

Объявление № 835541

2-к квартира, 49 кв.м

г Екатеринбург, пр-кт Космонавтов, д 11В

Железнодорожный район

М Уральская, 15 минут

35 000 /мес

сдам на длительный срок евродвушку, в квартире имеется вся необходимая мебель и техника для комфортного проживания: кухонный гарнитур, холодильник, свч, электроплита, духовой шкаф, чайник, посуда, дву

Показать телефон

Сегодня в 12:32

Объявление № 840150