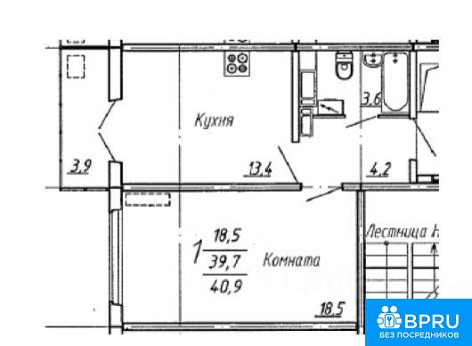
Аренда 1-к квартиры 40 кв.м, 16/17

29 000 /мес

Воронеж Московский просп., 179/4

Показать на карте

  • 40 м2 Общая площадь
  • 13 м2 Площадь кухни
  • 1 комн Планировка
  • 16/17 Этаж

Сегодня в 18:34

№ 838835

Проверено модератором

Мы звоним по указаному номеру и задаем ряд вопросов, чтобы убедиться, что квартира от собственника. При малейших подозрениях мы просим доказать, что квартира действительно от собственника или удаляем из базы.

ВАЖНО: никогда не вносите предоплату или залог, прежде чем осмотрите квартиру и проверяте документы собственника: паспорт и выписку из ЕГРН

Описание

Агенты, пожалуйста, свои предложения скидывайте в сообщения. Звонить не нужно. Сдаётся в аренду новая стильно обставленная уютная 1-комнатная квартира с большой кухней и потрясающим видом на бескрайний лес. Квартира расположена на 16 этаже 17-этажного дома, построенного в 2022 году. Для вашего удобства в наличии вся необходимая техника: холодильник, телевизор, микроволновая печь, стиральная машина, а также гладильная доска и утюг, сушилка, наматрасник на диван, подушки, одеяла и белье (белоснежные семейные комплекты из страйп-сатина- как в отеле ). Дом оснащён пассажирским и грузовым лифтами. Для вашего автомобиля предусмотрена наземная парковка. В 3х минутах от дома расположены магазины ( Пятерочка, Разливной рай, Вайлдберриз) и аптека, поэтому можно без труда приобрести всё необходимое для комфортной жизни. Квартира расположена недалеко от трассы М4, с новой автодорогой прямо до дома. Аренда осуществляется напрямую от собственника, без комиссии. Предусмотрен залог, который возвращается при выезде. Квартира идеально подойдёт для двух человек, ищущих комфортное жильё в новом доме. Дополнительное спальное место на кухне позволит разместить ваших гостей. Звоните и записывайтесь на просмотр, чтобы лично оценить все достоинства этой квартиры. Не упустите возможность жить в стильной квартире с шикарным видом и заботливым собственником.

Расположение

Другие 1-комн квартиры


1-к квартира, 40 кв.м

Воронеж ул. Независимости, 55/8

Коминтерновский район

20 000 /мес

Светлая, тёплая квартира с индивидуальными счётчикам отопления. Закрытая предомовая территория. Имеются площадки для маленьких детей, спортивная площадка для тренировок, огороженное футбольное поле. Р

Показать телефон

Сегодня в 18:34

Объявление № 831999

1-к квартира, 40 кв.м

Воронеж Московский просп., 90

Коминтерновский район

25 000 /мес

Сдаётся 1 комнатная квартира , по адресу Московский проспект 90, на 14 этаже 17 этажного дома. Дом находится в очень удобном расположении, рядом несколько остановок с которых можно уехать в любую част

Показать телефон

Сегодня в 18:34

Объявление № 834048

1-к квартира, 40 кв.м

Воронеж ул. Шукшина, 31

Коминтерновский район

20 000 /мес

Сдам 1-комнатную квартиру на длительный срок семейной паре. Оплата 20000т.р+к/у по квитанциям, залог 10000т.р. В квартире есть все необходимое для комфортного проживания: мебель, шкаф, холодильник, т

Показать телефон

Сегодня в 18:34

Объявление № 834058

Квартира-студия, 40 кв.м

Воронеж ул. Независимости, 84/2

Коминтерновский район

25 000 /мес

Квартира с новым ремонтом,(для комфортного проживания выполнена шумоизоляция .многие вещи абсолютно новые, многое в упаковке(холодильник , кровать ,матрас ,подушки ,одеяло ,постельное белье, посуда, с

Показать телефон

Сегодня в 18:34

Объявление № 839315

1-к квартира, 40 кв.м

Воронеж ул. Независимости, 78к1

Коминтерновский район

24 000 /мес

Сдается уютная однокомнатная квартира на длительный срок. Залог составляет 25,000 рублей. Коммунальные платежи оплачиваются арендатором по счетчикам. Проживание с детьми разрешено, но без животных. К

Показать телефон

Сегодня в 18:34

Объявление № 834360

1-к квартира, 40 кв.м

Воронеж бул. Победы, 51а

Коминтерновский район

20 000 /мес

Сдам однокомнатную квартиру 43 кв.м на Бульваре Победы, д. 51А, без мебели, 5 этаж 10 этажного дома. Аренда 20000 руб. + к/у. В шаговой доступности магазины "Магнит", "Пятерочка", Ozon. Во дворе обуст

Показать телефон

Сегодня в 18:34

Объявление № 830377

Квартира-студия, 40 кв.м

Воронеж Беговая ул., 223/1

Коминтерновский район

20 000 /мес

Сдаётся уютная Квартира студия на длительный срок, в новом доме с панорамным видом и дизайнерским ремонтом, есть все для комфортной жизни кроме тв. Оплата за месяц вперёд плюс залог стоимостью 1 месяц

Показать телефон

Сегодня в 18:34

Объявление № 836179

1-к квартира, 40 кв.м

Воронеж ул. Антонова-Овсеенко, 35В

Коминтерновский район

30 000 /мес

Сдается квартира на срок от 1го месяца. Коммунальные только за свет и воду. Цена на 1 месяц 35000р. От 3х 30000р Страховой депозит 15000р. Оплата подтверждается кассовым чеком. При необходимости ком

Показать телефон

Сегодня в 18:34

Объявление № 836381

1-к квартира, 40 кв.м

Воронеж бул. Победы, 44

Коминтерновский район

20 000 /мес

Новая, чистая, уютная, однокомнатная квартира. Есть вся бытовая техника и мебель. Хороший район рядом с тц Арена, Линия, Аксиома. На территории комплекса - магазины, аптеки, спортзалы. Экологичный, бл

Показать телефон

Сегодня в 18:34

Объявление № 831765

1-к квартира, 40 кв.м

Воронеж ул. Хользунова, 40Г

Коминтерновский район

20 000 /мес

Сдам свою ДВУХКОМНАТНУЮ квартиру КАК ОДНОКОМНАТНУЮ на длительный срок (не менее 6 месяцев). КОНДИЦИОНЕР с обогревом инверторный! Не агентство. Без животных. Курение в квартире запрещено. В квартире

Показать телефон

Сегодня в 18:34

Объявление № 834675

1-к квартира, 40 кв.м

Воронеж ул. Шишкова, 105А

Коминтерновский район

22 000 /мес

сдам 1-ую квартиру. квартира теплая, уютная,светлая, окна выходят во двор. соседи приличные. вся инфраструктура рядом, магазины во дворе. вся мебель и техника необходимая для жизни есть. сдается на д

Показать телефон

Сегодня в 18:34

Объявление № 831511

1-к квартира, 40 кв.м

Воронеж ул. Миронова, 47

Коминтерновский район

23 000 /мес

Все необходимое для проживания в квартире есть.Ремонт, мебель все новое. Магазин ,,Пятерочка,, в 5 ти минутах ходьбы.Школа,детский сад.Сдам чистоплотному, порядочному одному человеку, либо семье. Подр

Показать телефон

Сегодня в 18:34

Объявление № 832338

1-к квартира, 40 кв.м

Воронеж Московский просп., 211

Коминтерновский район

20 000 /мес

Сдается уютная однокомнатная квартира на 16-м этаже современного монолитного дома, построенного в 2018 году. Общая площадь квартиры составляет 37 кв. м, из которых 19 кв. м — жилая площадь, а кухня за

Показать телефон

Сегодня в 18:34

Объявление № 834691

1-к квартира, 40 кв.м

Воронеж пер. Здоровья, 88А

Коминтерновский район

20 000 /мес

Сдается 1 комнатная квартира на длительный срок. Есть все необходимое для проживания: мебель, бытовая техника, посуда. Рядом парк Динамо, лес для отдыха, прогулок и занятий спортом. В шаговой доступ

Показать телефон

Сегодня в 18:34

Объявление № 835411

1-к квартира, 40 кв.м

Воронеж ул. Серафима Саровского, 179к1

Коминтерновский район

18 000 /мес

Сдаётся на длительный срок однокомнатная квартира в ЖК "Новое Подгорное". Новая бытовая техника и мебель, кондиционер. Рядом с домом расположены школа, детский сад, магазины. Остановки общественного т

Показать телефон

Сегодня в 18:34

Объявление № 831995

1-к квартира, 40 кв.м

Воронеж Солнечная ул., 34

Коминтерновский район

19 000 /мес

Сдается однокомнатная квартира в коттедже арендаторам без детей и животных. В закрытом дворе имеется парковочное место. ----- Примечание: у собственника могут быть дополнительные пожелания к жильцам

Показать телефон

Сегодня в 18:34

Объявление № 834475

1-к квартира, 40 кв.м

Воронеж ул. 45-й Стрелковой Дивизии, 251к1

Коминтерновский район

30 000 /мес

Сдается уютная однокомнатная квартира на длительный срок. Залог составляет 30,000 рублей. Коммунальные услуги оплачиваются арендатором по счетчикам. Проживание с детьми и животными разрешено. Квартир

Показать телефон

Сегодня в 18:34

Объявление № 838343